EasyManua.ls Logo

Weinig Profimat 23 E - Profile Setup Variations; Tool Setup for Profiled Wood

Weinig Profimat 23 E
98 pages
Print Icon
To Next Page IconTo Next Page
To Next Page IconTo Next Page
To Previous Page IconTo Previous Page
To Previous Page IconTo Previous Page
Loading...
Tech. Dok. / L23 880 02 / 05.99.01 © MICHAEL WEINIG AG
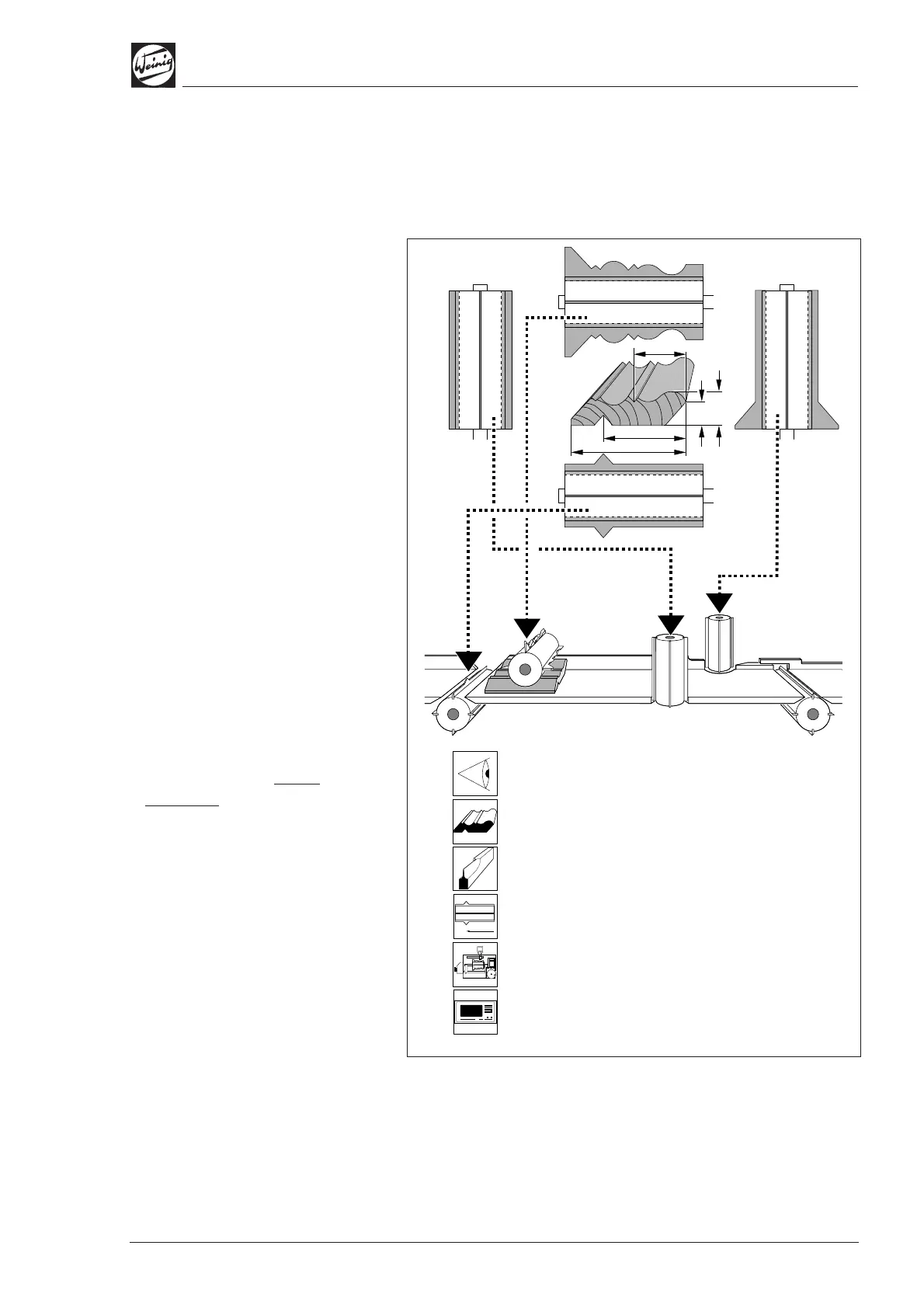
Setting up profiles
5-1Profimat 23 E
Setting up tools –
profiled wood
Workpiece
Define axial and radial dimensions
which can easily be measured on
the profile.
Tools
• Fit tools as shown in diagram.
Setting up tools – axial
and radial
Select one of the set-up
variations alongside, depending
on the configuration and
accessories for your machine.
Tool cutting circle
Set table plates and fences for the
maximum tool cutting circle.
Check all settings again.
Start production
As already described in the
chapter entitled "Operation".
79
57
22
15
36
const
1. Planing a test piece
2. Setting up in accordance with
profile patterns
3. Setting up with aids
4. Axially constant tools
5. Dimensioned tools
6. Machines with control system

Table of Contents