EasyManua.ls Logo

YASKAWA iQpump1000 - Page 73

YASKAWA iQpump1000
508 pages
Print Icon
To Next Page IconTo Next Page
To Next Page IconTo Next Page
To Previous Page IconTo Previous Page
To Previous Page IconTo Previous Page
Loading...
n
Flange Type Heat Loss Data
Table 2.19 Models 2A0138, 4A0072, and 5A0041 and 5A0052
Drive Model
Voltage
Class
Heat Loss (W)
Wt. kg (lb)ND (Fc = 2 kHz) HD (Fc = 8 kHz)
Internal External Total Internal External Total
2A0138 200 312 842 1154 250 662 912 28 (61.6)
Drive Model
Voltage
Class
Input Type
Heat Loss (W)
Wt. kg (lb)ND (Fc = 2 kHz) HD (Fc = 8 kHz)
Internal External Total Internal External Total
4A0072 400 6-Pulse 265 605 870 217 484 701 27 (59.4)
Drive Model
Voltage
Class
Heat Loss (W)
Wt. kg (lb)ND (Fc = 2 kHz) HD (Fc = 8 kHz)
Internal External Total Internal External Total
5A0041
600
136 331 467 128 406 534 27 (59.4)
5A0052 166 428 594 161 527 688 27 (59.4)
n
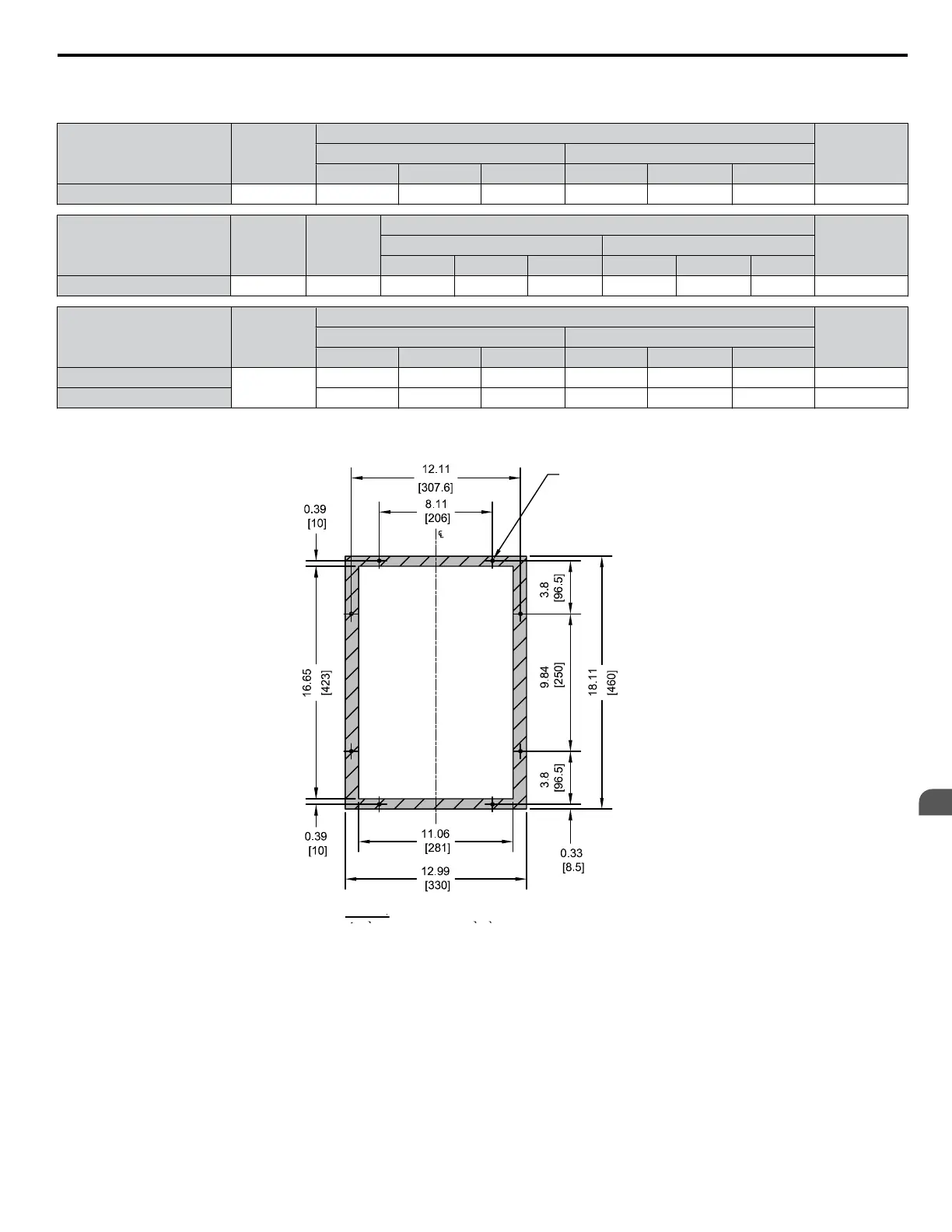
Flange Type Panel Cutout Dimensions for External Heatsink Mounting
CUTOUT
NOTES:
1. CUTOUT TOLERANCES:
+/- 0.02 in. [0.5 mm]
2. EXPOSED HEATSINK DEPTH
3. MINIMUM RECOMMENDED PANEL
THICKNESS: 12 GA
D=3.81 in. [97 mm] MINUS PANEL THICKNESS
(8)-1/4 in. [M6]
THREADED HOLES
Unit: in. [mm]
Figure 2.30 Models 2A0138, 4A0072, and 5A0041 and 5A0052
2.2 Flange Type Enclosure (NEMA 12 Backside) Dimensions & Heat Loss
YASKAWA TOEP YAIP1W 01F YASKAWA AC Drive - iQpump1000 User Manual
73
2
Mechanical Installation

Table of Contents

Other manuals for YASKAWA iQpump1000

Related product manuals