EasyManua.ls Logo

YASKAWA iQpump1000 - Flange Type Models 4 A0515 and 4 A0675

YASKAWA iQpump1000
508 pages
Print Icon
To Next Page IconTo Next Page
To Next Page IconTo Next Page
To Previous Page IconTo Previous Page
To Previous Page IconTo Previous Page
Loading...
u
Flange Type Models 4A0515 and 4A0675
n
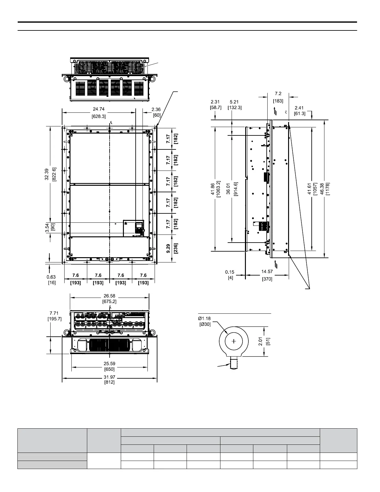
Flange Type Exterior and Mounting Dimensions
NOTE: Maximum surrounding air temperature is 50 °C (122 °F)
Unit: in. [mm]
NOTE: Spreader bar required to avoid damage during lifting.
LIFTING AND EYEBOLT DETAILS
(3) EXTERNAL
COOLING FANS
(20)-MOUNTING HOLES
FOR 3/8 in. [M10] SCREWS
HORIZONTAL MOUNTING DIM
M122 THREAD
VERTICAL MOUNTING DIM
(2) MOUNTING BRACKETS
USED DURING TRANSPORT ONLY
REMOVE BEFORE INSTALLING
AIR
AIR
FRONT VIEW
Figure 2.41 Models 4A0515 and 4A0675
n
Flange Type Heat Loss Data
Table 2.25 Models 4A0515 and 4A0675
Drive Model
Voltage
Class
Heat Loss (W)
Wt. kg (lb)ND (Fc = 2 kHz) HD (Fc = 8 kHz)
Internal External Total Internal External Total
4A0515
400
1668 4850 6518 1386 3972 5358 223 (492)
4A0675 2037 4861 6898 1685 4191 5876 228 (503)
2.2 Flange Type Enclosure (NEMA 12 Backside) Dimensions & Heat Loss
86
YASKAWA TOEP YAIP1W 01F YASKAWA AC Drive - iQpump1000 User Manual

Table of Contents

Other manuals for YASKAWA iQpump1000

Related product manuals