EasyManua.ls Logo

YASKAWA iQpump1000 - Page 80

YASKAWA iQpump1000
508 pages
Print Icon
To Next Page IconTo Next Page
To Next Page IconTo Next Page
To Previous Page IconTo Previous Page
To Previous Page IconTo Previous Page
Loading...
n
Flange Type Heat Loss Data
Table 2.22 Models 2A0250 and 2A0312, 4A0208, and 5A0125 and 5A0145
Drive Model
Voltage
Class
Heat Loss (W)
Wt. kg (lb)ND (Fc = 2 kHz) HD (Fc = 5 kHz)
Internal External Total Internal External Total
2A0250
200
594 1764 2358 466 1514 1980 83 (183)
2A0312 665 2020 2685 588 1936 2524 88 (194)
Drive Model
Voltage
Class
Input Type
Heat Loss (W)
Wt. kg (lb)ND (Fc = 2 kHz) HD (Fc = 5 kHz)
Internal External Total Internal External Total
4A0208 400 6-Pulse 607 1800 2407 541 1771 2312 87 (191)
Drive Model
Voltage
Class
Heat Loss (W)
Wt. kg (lb)ND (Fc = 2 kHz) HD (Fc = 2 kHz)
Internal External Total Internal External Total
5A0125
600
537 1641 2178 422 1328 1750 87 (191)
5A0145 603 1860 2463 508 1638 2146 87 (191)
n
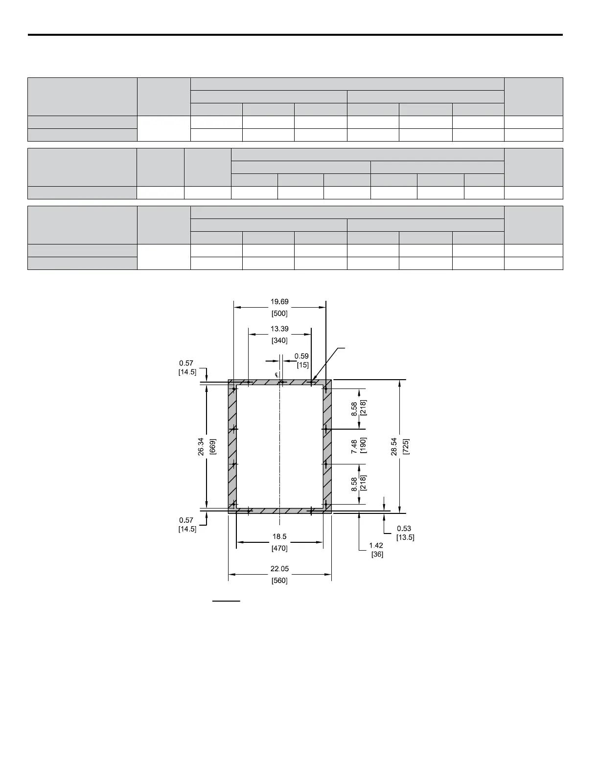
Flange Type Panel Cutout Dimensions for External Heatsink Mounting
NOTES:
+/- 0.02 in. [0.5 mm]
2. EXPOSED HEATSINK DEPTH
3. MINIMUM RECOMMENDED PANEL
THICKNESS: 10 GA
D=5.00 in. [127 mm] MINUS PANEL THICKNESS
(13)-3/8 in. [M10]
THREADED HOLES
Unit: in. [mm]
CUTOUT
1. CUTOUT TOLERANCES:
Figure 2.36 Models 2A0250 and 2A0312, 4A0208, and 5A0125 and 5A0145
2.2 Flange Type Enclosure (NEMA 12 Backside) Dimensions & Heat Loss
80
YASKAWA TOEP YAIP1W 01F YASKAWA AC Drive - iQpump1000 User Manual

Table of Contents

Other manuals for YASKAWA iQpump1000

Related product manuals