EasyManua.ls Logo

YASKAWA JUSP-MD D01A Series - Internal Block Diagrams; Internal Block Diagram of the Multi-Winding Drive Unit; Internal Block Diagram for SERVOPACK and Converter

YASKAWA JUSP-MD D01A Series
363 pages
To Next Page IconTo Next Page
To Next Page IconTo Next Page
To Previous Page IconTo Previous Page
To Previous Page IconTo Previous Page
Loading...
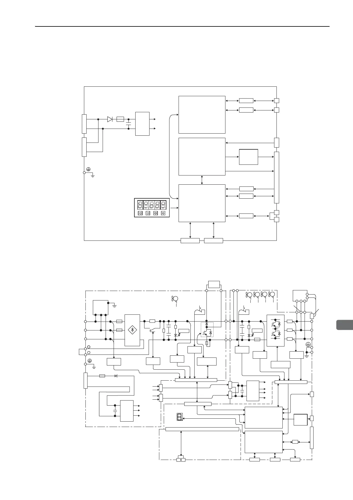
1.5 Internal Block Diagrams
1-13
1
Outline
1.5 Internal Block Diagrams
1.5.1 Internal Block Diagram of the Multi-Winding Drive Unit
1.5.2 Internal Block Diagram for SERVOPACK and Converter
Reference voltage input
A/D
CPU
(e.g., position
and speed calculations)
ASIC
(e.g., torque calculations)
ASIC
(local communications)
I/F
I/O
Analog
voltage
converter
I/F
I/F
CN41A
CN41B
CN21
CN9A
CN9B
CN1
Digital
operator
Personal
computer
Not used.
I/O signals
Analog monitor
output
Encoder
Local
communications
Encoder divided
pulse output
CN7A
CN54 CN4
CN7B
+5 V
±
15 V
+
-
+24 V
0 V
Panel operator
Control power
supply (You must
provide a DC power
supply (24 VDC).)
Control
power
supply
Control
power
supply
L1
+
B2
L2
+24 V
0 V
U
V
W
+5 V
Voltage sensor
gate drive
-
1
Voltage
sensor
Fan
2
L3
MC
drive
Voltage
sensor
-
2
CHARGE
P24 V
Fan
1
SPD
+15 V
+24 V×2
P
N
+24 V
24C
+24 V
24C
CN103
CN104
CN901
Fan
Temperature
sensor
P
N
CHARGE
Voltage
sensor
Current
sensor
Gate drive
Fan
4
Fan 3
(55-kW
models only)
Temperature
sensor
Converter I/O
SERVOPACK control
power supply
CN103
CN104
P24 V
0 V
CN901
Control
power
supply
+24 V×6
24 V
+5 V
15 V
ASIC
(e.g., PWM control)
CPU (e.g., position and
speed calculations)
CN2
Display LED
CN6A CN6B
Local
communications
Local communications
P24 V P24 V P24 V
24 V
-
B1
DU
DV
DW
CN115
Dynamic
brake unit
Not used.Not used.
I/O signals
CN5
CN3 CN7 CN8
Safety function signals
CN1
Analog
voltage
converter
Not used.
Not used.
I/O
Control power supply
(You must provide the
DC power supply (24 VDC).)
Main circuit
power supply
Regenerative
resistor unit
M-II

Table of Contents

Related product manuals