EasyManua.ls Logo

ABB ACS850 - Speed Ctrl

ABB ACS850
370 pages
Print Icon
To Next Page IconTo Next Page
To Next Page IconTo Next Page
To Previous Page IconTo Previous Page
To Previous Page IconTo Previous Page
Loading...
176 Parameters
22.09 Shape time dec2 Defines the shape of the deceleration ramp at the end of the
deceleration. See parameter 22.06 Shape time acc1.
0.000 … 1800.000
s
Ramp shape at end of deceleration. 1000 = 1 s
22.10 Acc time jogging Defines the acceleration time for the jogging function i.e. the
time required for the speed to change from zero to the speed
value defined by parameter 19.01 Speed scaling.
0.000 … 1800.000
s
Acceleration time for jogging. 1000 = 1 s
22.11 Dec time jogging Defines the deceleration time for the jogging function i.e. the
time required for the speed to change from the speed value
defined by parameter 19.01 Speed scaling to zero.
0.000 … 1800.000
s
Deceleration time for jogging. 1000 = 1 s
22.12 Em stop time Defines the time inside which the drive is stopped if an
emergency stop OFF3 is activated (i.e. the time required for
the speed to change from the speed value defined by
parameter 19.01 Speed scaling to zero). Emergency stop
activation source is selected by parameter 10.13 Em stop
off3. Emergency stop can also be activated through fieldbus
(02.22 FBA main cw or 02.36 EFB main cw).
Note: Emergency stop OFF1 uses the active ramp time.
0.000 … 1800.000
s
Emergency stop OFF3 deceleration time. 1000 = 1 s
23
23 Speed ctrl
Speed controller settings. For an autotune function, see
parameter 23.20 PI tune mode.
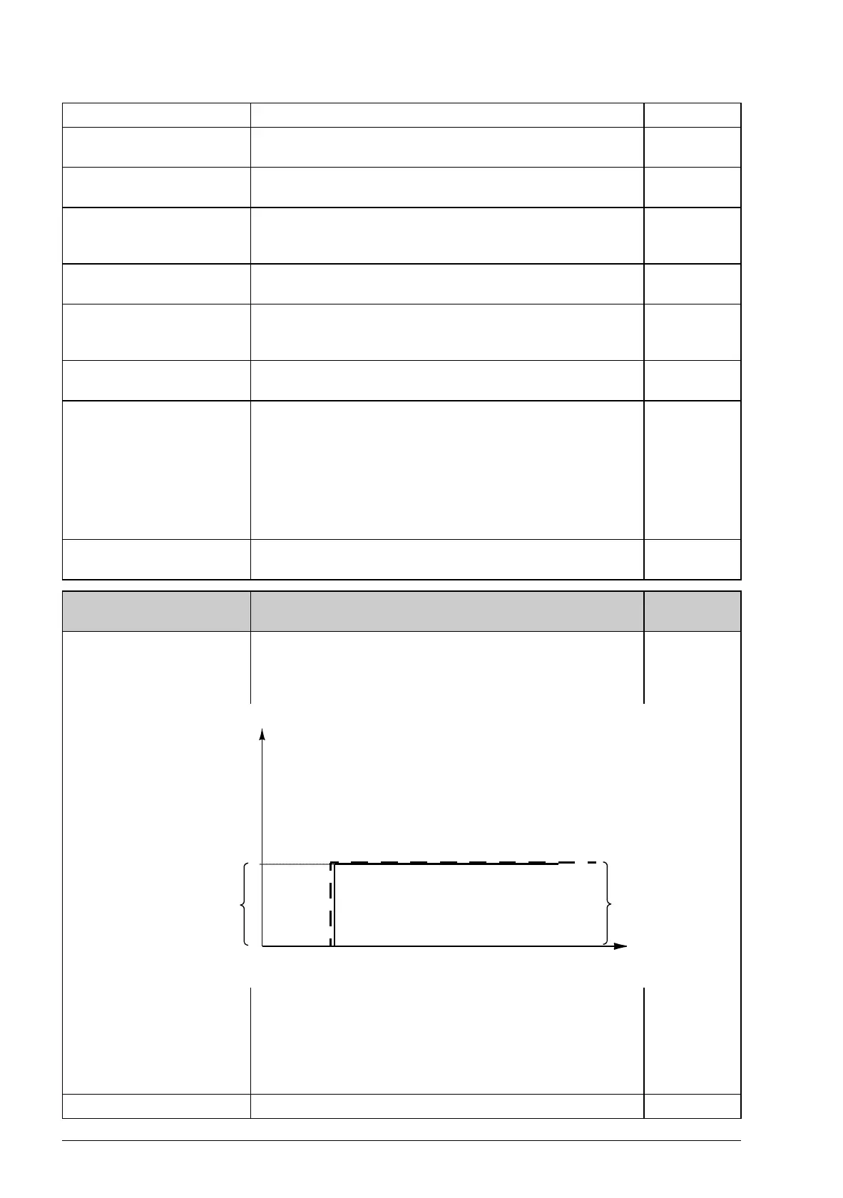
23.01 Proport gain Defines the proportional gain (K
p
) of the speed controller. Too
large a gain may cause speed oscillation. The figure below
shows the speed controller output after an error step when
the error remains constant.
If gain is set to 1, a 10% change in error value (reference -
actual value) causes the speed controller output to change by
10%.
Note: This parameter is automatically set by the speed
controller autotune function. See parameter 23.20 PI tune
mode.
0.00 … 200.00 Proportional gain for speed controller. 100 = 1
No. Name/Value Description FbEq
Gain = K
p
= 1
T
I
= Integration time = 0
T
D
= Derivation time = 0
%
Controller
output = K
p
×e
Time
e = Error value
Controller output
Error value

Table of Contents

Other manuals for ABB ACS850

Related product manuals