EasyManua.ls Logo

ABB ACS880-104

ABB ACS880-104
664 pages
To Next Page IconTo Next Page
To Next Page IconTo Next Page
To Previous Page IconTo Previous Page
To Previous Page IconTo Previous Page
Loading...
Parameters 169
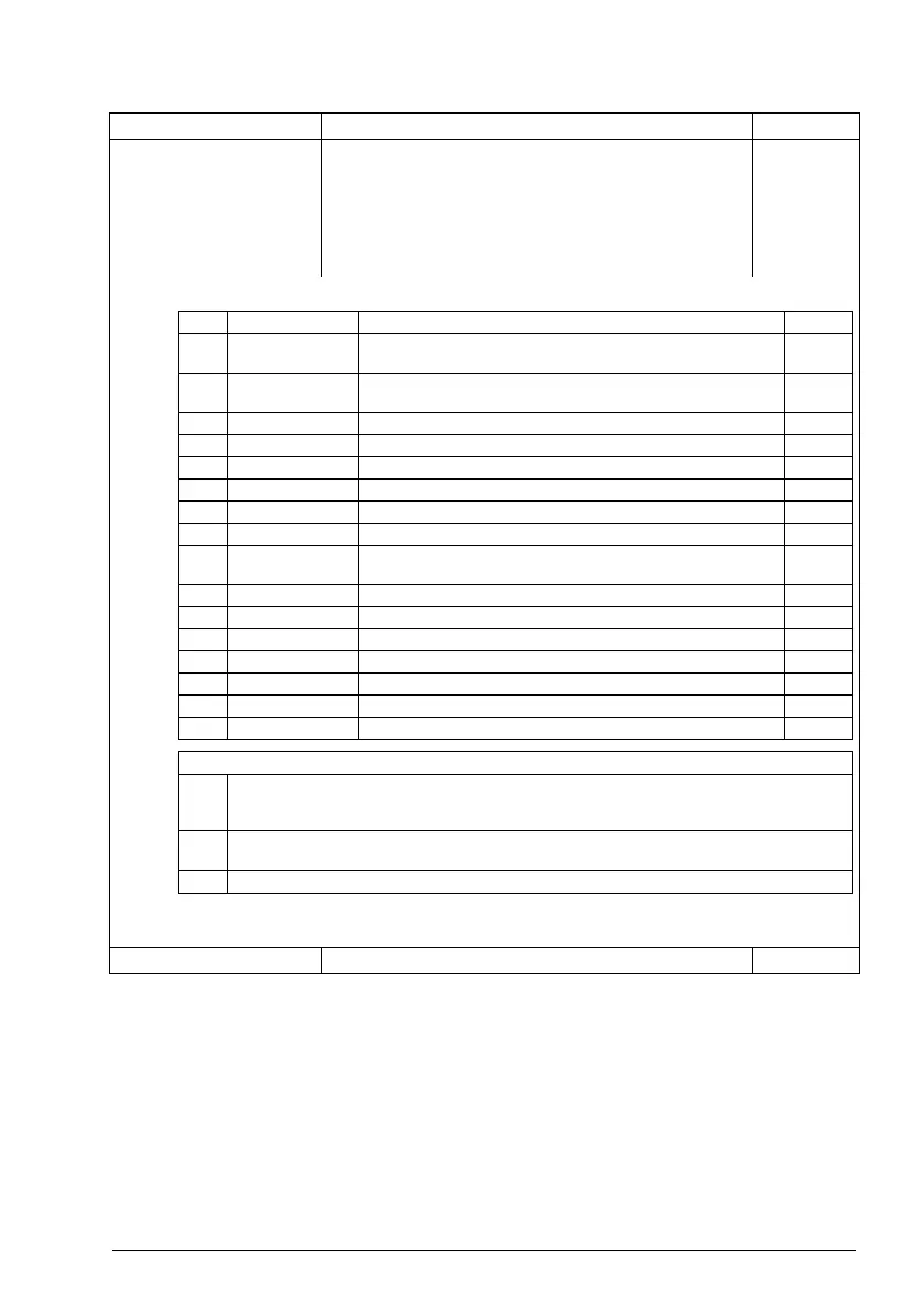
06.18 Start inhibit status
word
Start inhibit status word. This word specifies the source of the
inhibiting condition that is preventing the drive from starting.
After the condition is removed, the start command must be
cycled. See bit-specific notes
See also parameter 06.25 Drive inhibit status word 2, and
06.16 Drive status word 1, bit 1.
This parameter is read-only.
-
0000h…FFFFh Start inhibit status word. 1 = 1
No. Name/Value Description Def/FbEq16
Bit Name Description Note
0 Not ready run 1 = DC voltage is missing or drive has not been parametrized
correctly. Check the parameters in groups 95 and 99.
a
1 Ctrl location
changed
1 = Control location has changed a,c
2 SSW inhibit 1 = Control program is keeping itself in inhibited state a
3 Fault reset 1 = A fault has been reset a,c
4 Lost start enable 1 = Start enable signal missing a
5 Lost run enable 1 = Run enable signal missing a
6 FSO inhibit 1 = Operation prevented by FSO-xx safety functions module b
7 STO 1 = Safe torque off active b
8 Current calibration
ended
1 = Current calibration routine has finished b,c
9 ID run ended 1 = Motor identification run has finished b,c
10 Auto phase ended 1 = Autophasing routine has finished b,c
11 Em Off1 1 = Emergency stop signal (mode Off1) b
12 Em Off2 1 = Emergency stop signal (mode Off2) b
13 Em Off3 1 = Emergency stop signal (mode Off3) b
14 Auto reset inhibit 1 = The autoreset function is inhibiting operation
15 Jogging active 1 = The jogging enable signal is inhibiting operation b
Notes:
a If bit 1 of 06.16 Drive status word 1 is still set after the removal of the inhibiting condition,
and edge triggering is selected for the active external control location, a fresh rising-edge
start signal is required. See parameters 20.02, 20.07 and 20.19.
b If bit 1 of 06.16 Drive status word 1 is still set after the removal of the inhibiting condition, a
fresh rising-edge start signal is required.
c Informative bit. The inhibiting condition need not be removed by the user.

Table of Contents

Other manuals for ABB ACS880-104

Related product manuals