EasyManua.ls Logo

ABB SCK - Cooling Module Overview

ABB SCK
244 pages
Print Icon
To Next Page IconTo Next Page
To Next Page IconTo Next Page
To Previous Page IconTo Previous Page
To Previous Page IconTo Previous Page
Loading...
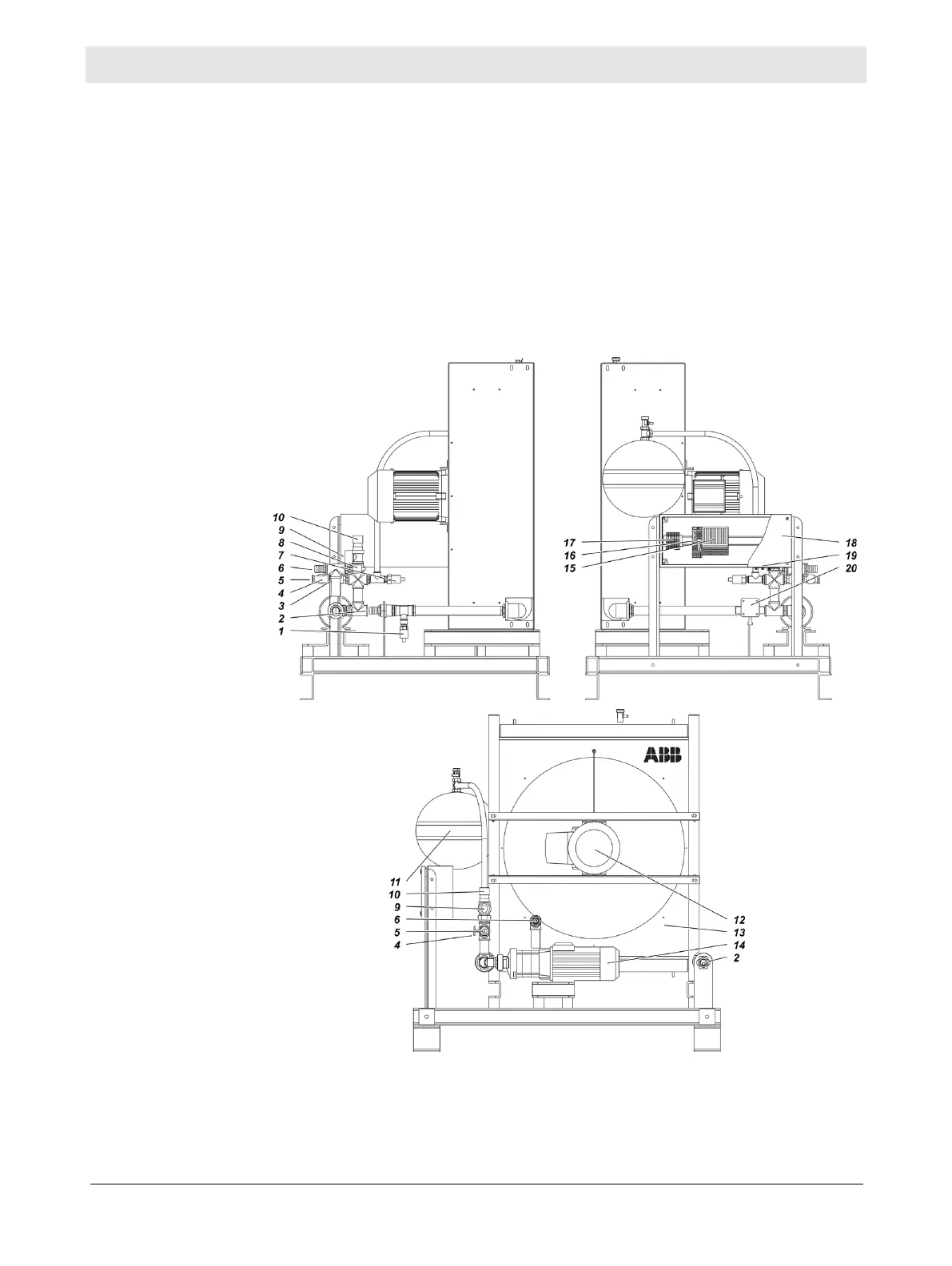
30 Operating instruction SCK Gas Sampling System OI/SCK-EN Rev. E
Cooling module
Owing to the prevailing operating conditions it is necessary to cool the gas
sampling probe. The probe cooling system serves to provide and monitor the
cooling water supply. In addition to the speed-controlled heat exchanger and
cooling water transport unit, this unit also houses all transducers for monitor-
ing cooling water. The completely closed system monitors the following pa-
rameters:
Cooling water temperature
Cooling water flow rate
Cooling water pressure
The following illustrations show the cooling module:
Meaning
Structure

Table of Contents

Other manuals for ABB SCK

Related product manuals