EasyManua.ls Logo

ActronAir ELY620T - ELY620 T - ELY700 T Unit Dimension

ActronAir ELY620T
92 pages
Print Icon
To Next Page IconTo Next Page
To Next Page IconTo Next Page
To Previous Page IconTo Previous Page
To Previous Page IconTo Previous Page
Loading...
18
Installation and Commissioning Guide 500-700 Tri-Capacity Split Ducted
Doc. No.0525-098 Ver. 2 210330
Installation and Commissioning Guide
Split Tri-Capacity
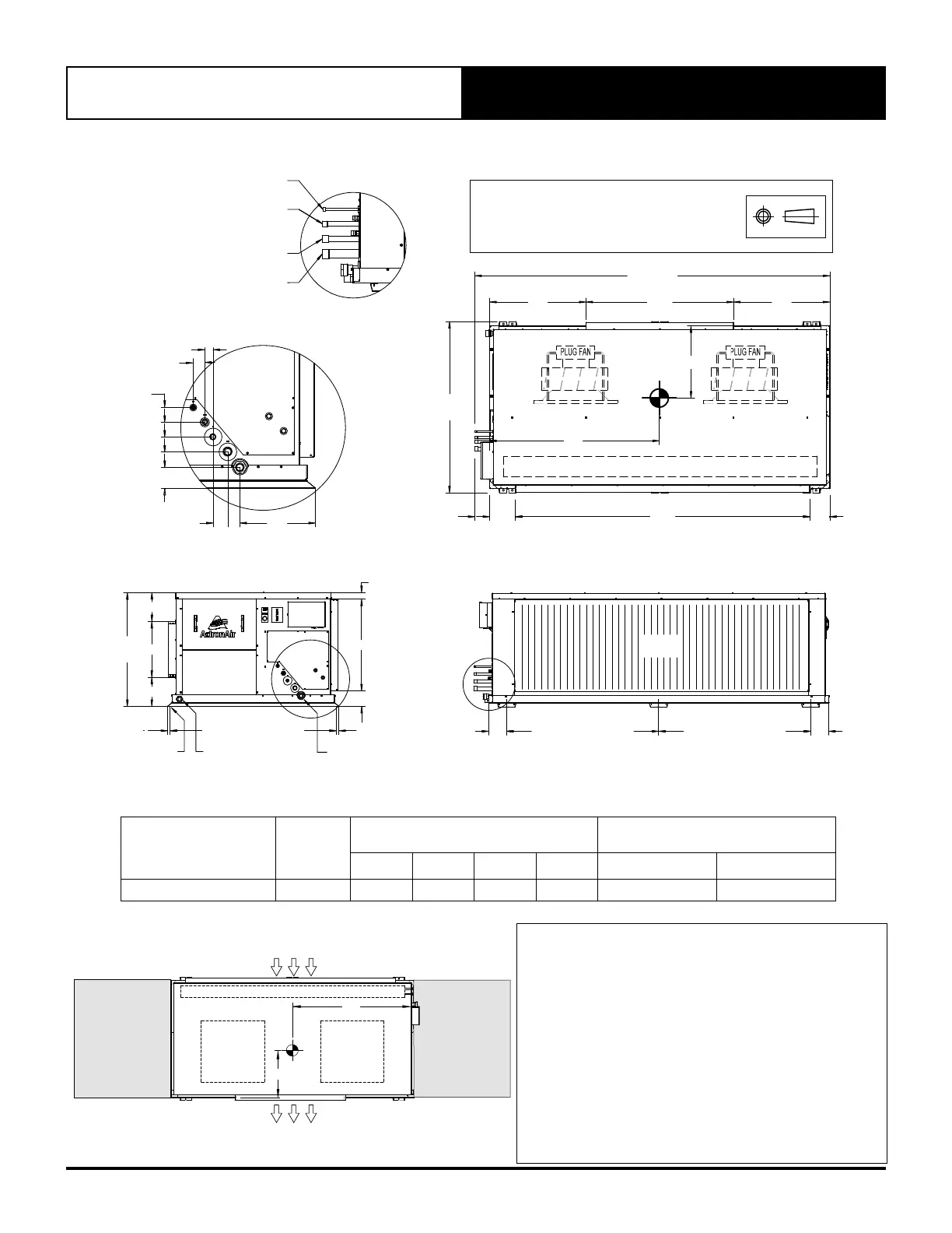
08.04. ELY620T - ELY700T Unit Dimension
Unit Model Number
Unit
Weight
Corner Weights(kg) Centre Of Gravity Position
A B C D XX YY
ELY620T / ELY700T 274 78 81 56 59 1130 463
125(MTG C-C DIST 1030)(MTG C-C DIST 1030)125
17.5 (MTG C-C DIST 1125) 17.5
260
380
255
895
O/A
105
745
45
255
4050
30
70
ALL 50
40
DETAIL P
LARGE GAS
Ø 28.6 (1-1/8")
LARGE LIQ
Ø 15.9 (5/8")
SMALL GAS
Ø 25.4 (1")
SMALL LIQ
Ø 12.7 (1/2")
DETAIL T
6 x Ø 15.0
MTG. HOLES
SAFETY TRAY DRAIN
Ø 25.4 (1")
BSP SOCKET
CONDENSATE DRAIN
Ø 25.4 (1")
BSP FEMALE THREAD
COIL
EE
FF
175 2000 135100
655 1000 655
INDOOR COIL
2410 O/A
1160
O/A
T
P
Q
8")
SIDE VIEW
FRONT VIEW
DIMENSION H X W X D = 895 X 2410 X 1160
SUPPLY DUCT H X W = 380 X 1000
RETURN DUCT = 745 X 2000
USE M12 BOLT FOR FEET MOUNTING
THIRD ANGLE
PROJECTION
TOP VIEW
DETAIL P
DETAIL T
HEIGHT CLEARANCE = 500
TOP VIEW
A
C
D
B
SERVICE ACCESS AREAS
DUCT WORK
DUCT WORK
1000 mm
SERVICE
CLEARANCE
(PLUG FAN)
1000 mm
SERVICE
CLEARANCE
(PLUG FAN and
ELECTRICALS)
PLUG FAN
PLUG FAN
INDOOR COIL
YY
XX
NOTES:
1. Do not scale drawing. All dimensions are in mm unless
specified. Refer to corresponding unit dimensional drawing for
mounting hole details.
2. Service Access Areas and Spaces for Airflow Clearances given
are suggested minimum based on the condition that the
spaces around the units are free from any obstructions and a
walkway passage of 1000mm between the units or between
the unit and the outside perimeter is available.
3. Minimum service access areas and spaces for airflow
clearances are responsibilities of the installer, ActronAir will
not be held liable for any extra charges incurred due to lack of
access and space for airflow.
XX
YY

Table of Contents

Related product manuals