EasyManua.ls Logo

ActronAir ELY620T - Return Air - Outside Air - Spill Air Control Wiring Procedures

ActronAir ELY620T
92 pages
Print Icon
To Next Page IconTo Next Page
To Next Page IconTo Next Page
To Previous Page IconTo Previous Page
To Previous Page IconTo Previous Page
Loading...
Installation and Commissioning Guide
Split Tri-Capacity
39
Installation and Commissioning Guide 500-700 Tri-Capacity Split Ducted
Doc. No.0525-098 Ver. 2 210330
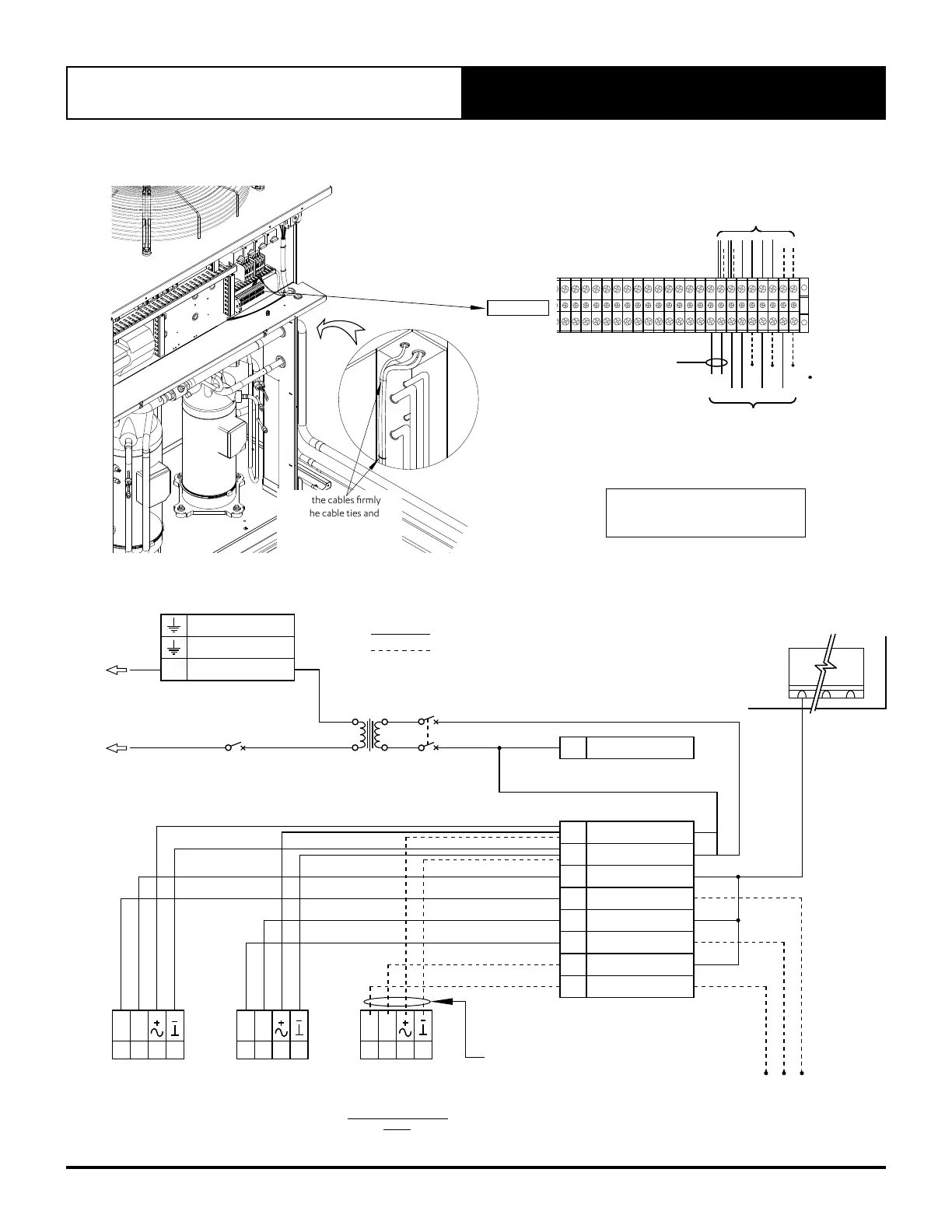
15.04. Return Air - Outside Air - Spill Air Control Wiring Procedures
Secure the cables firmly
using the cable ties and
clamp provided in the
panel.
TERMINALS
Refer to diagram below for
details of DAMPER connections.
Optional Dampers
To Outdoor
Control
Third Party Damper
Control
24VAC
Active/Neutral
3029282726252423
J26
TERMINALS
TERMINAL
TERMINAL
THIRD PARTY CONTROL
MONITORING
OUTDOOR
CONTROL
23
24V AC - ACT
24
24V AC - N
25
(0) 2-10V DC O/A INP
26
(0) 2-10V DC O/A OUT
27
(0) 2-10V DC R/A INP
28
(0) 2-10V DC R/A OUT
29
(0) 2-10V DC S/A INP
30
(0) 2-10V DC S/A OUT
1
24V AC OUT
EARTH
EARTH
N
240VAC - N
Y4
D19C
24V AC
TX
72 VA
CB-3
6 A
CB-2
6 A
240V AC
RETURN AIR
DAMPER
OPTIONAL
FACTORY SUPPLIED AND
FITTED
SPILL AIR
DAMPER
OPTIONAL
INSTALLER SUPPLIED AND
FITTED
OUTSIDE AIR
DAMPER
OPTIONAL
FACTORY SUPPLIED AND
FITTED
FIELD WIRING BY
THE INSTALLER
TO MAINS
NEUTRAL
TO FT-2
U Y
5 3 2 1
U Y
5 3 2 1
U Y
5 3 2 1
LEGEND:
Factory wired and fitted accessories.
Installer to supply, wire and fit accessories.
RETURN AIR - OUTSIDE AIR - SPILL AIR CONTROL CONNECTION DIAGRAM

Table of Contents

Related product manuals