EasyManua.ls Logo

ActronAir ELY620T - Electrical; Split Unit Electrical Connection

ActronAir ELY620T
92 pages
Print Icon
To Next Page IconTo Next Page
To Next Page IconTo Next Page
To Previous Page IconTo Previous Page
To Previous Page IconTo Previous Page
Loading...
36
Installation and Commissioning Guide 500-700 Tri-Capacity Split Ducted
Doc. No.0525-098 Ver. 2 210330
Installation and Commissioning Guide
Split Tri-Capacity
15. ELECTRICAL
NOTES
All electrical work must be carried out by a qualified technician.
Make sure all wiring is in accordance with local wiring rules.
Wiring connections should be made in accordance with the provided wiring diagram.
The unit wiring diagram is located in the Access Panel - Electrical.
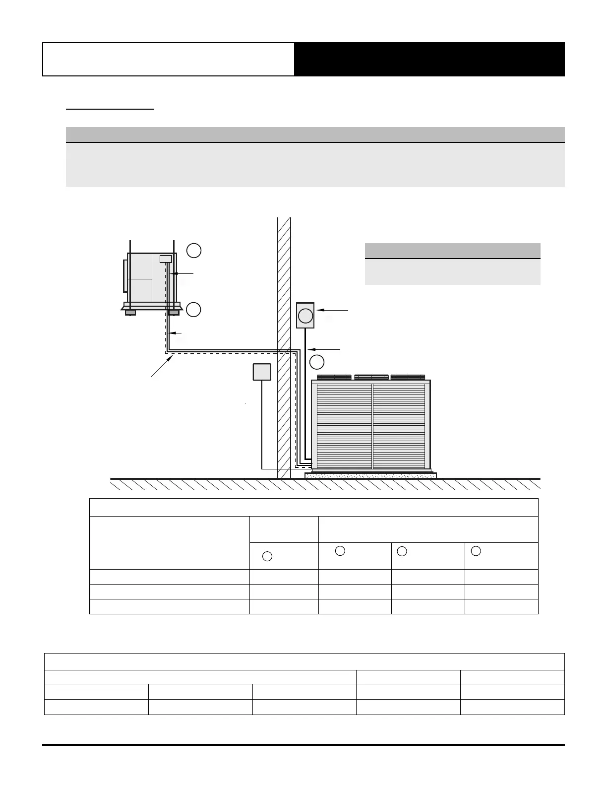
15.01. Split Unit Electrical Connection
NOTE
Please see Maximum Cable Lengths on next
page for cable specifications.
INTER-CONNECTING
CONTROLLER CABLE
OUTDOOR - CIB
WALL
CONTROL
(Optional)
CIRCUIT BREAKER
(Field Supplied by Installer)
SUB-MAIN
TO UNIT
(Field Supplied by Installer)
OUTDOOR
UNIT
INDOOR
UNIT
A
B
INTER-CONNECTING
CONTROL POWER CABLE
OUTDOOR - INDOOR
C
INTER-CONNECTING
FAN POWER CABLE
OUTDOOR - INDOOR
D
D
POWER CIRCUIT BREAKER SIZE AND CABLE SIZE
Model
Circuit
Breaker Size
Cable Size * (mm
2
)
Amps
Main
(4 Core +E)
O.D. to I.D.
(2 Core + E)
O.D. to I.D.
(3 Core + E)
CAY500T EVY500T ELY500T
50.0 10.0 1.0 1.5
CAY620T EVY620T ELY620T
63.0 16.0 1.0 1.5
CAY700T EVY700T ELY700T
80.0 25.0 1.0 1.5
* Suggested Minimum Cable Size should be used as a guide only, refer to AS/NZS 3000 “Australian / New Zealand Wiring Rules” for more details.
B
A
C
WIRING DIAGRAM MATRIX  SPLIT DUCTED INDOOR STANDARD MODELS
Model Wiring Diagram DESCRIPTION
EVY500T EVY620T EVY700T 0515-8804 STANDARD PROFILE
ELY500T ELY620T ELY700T 0515-8801 LOW PROFILE

Table of Contents

Related product manuals