EasyManua.ls Logo

AGI D1660 - Plenum Door Safety Switch

Default Icon
160 pages
Print Icon
To Next Page IconTo Next Page
To Next Page IconTo Next Page
To Previous Page IconTo Previous Page
To Previous Page IconTo Previous Page
Loading...
7713395 R2 79
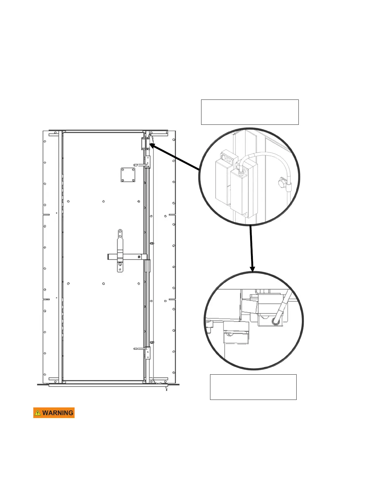
4.4.3 Plenum Door Safety Switch
The plenum door safety switch is mounted on the top right-hand corner of the plenum entry door.
Note
When the door is open, the emergency stop alarm will appear on the HMI screen. This will turn OFF all
outputs from the PLC. It does NOT shut off power into either Control Panel. The Power ON lamp will
remain lit on the main Control Panel. Close plenum door for dryer operation.
DoorOpen:EStopactive
(Closedoortoresetalarm)
DoorClosed:Switchisaligned.
Normaloperationpermitted
Theplenumdoorsafetyswitchismountedinthetoprighthandcorneroftheplenum
entrydoor.Whenthedooris open,theemergencystopalarmwillappearontheHMI
screen.ThiswillturnOFFalloutputsfromthePLC.ItdoesNOTshutoffpowerinto
eitherControl
Panel.ThePowerONlampwillremainlitonthemainControlPanel.
Closeplenumdoorfordryeroperation.Besuretofollowproperlockout/tagout
procedurespriortoenteringthedryer.
Be sure to follow proper lockout/tagout procedures prior to entering the dryer.
CONTINUOUS MIXED-FLOW GRAIN DRYER WITH COMMANDER CONTROL SYSTEM 4. OPERATION

Table of Contents

Related product manuals