EasyManua.ls Logo

Anritsu MP8931A - Page 146

Anritsu MP8931A
154 pages
Print Icon
To Next Page IconTo Next Page
To Next Page IconTo Next Page
To Previous Page IconTo Previous Page
To Previous Page IconTo Previous Page
Loading...
Appendix A Specifications
A-4
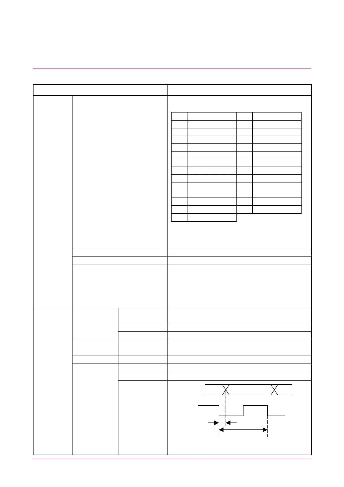
(3) DVB-SPI interface
Item Specifications
Common
(I/O)
Connector
D_Sub 25 (Female)
Table Pin Contact Assignment
Pin
Signal
Pin
Signal
1 Clock A
14
Clock B
2 System GND
15
System GND
3
Data 7 A (MSB)
16
Data 7 B (MSB)
4 Data 6 A
17
Data 6 B
5 Data 5 A
18
Data 5 B
6 Data 4 A
19
Data 4 B
7 Data 3 A
20
Data 3 B
8 Data 2 A
21
Data 2 B
9 Data 1 A
22
Data 1 B
10
Data 0 A
23
Data 0 B
11
DVALID A
24
DVALID B
12
PSYNC A
25
PSYNC B
13
Cable shield
Logical conversion
1: Voltage of A is higher than that of B.
0: Voltage of A is lower than that of B.
Termination
100
Signal type
Data [7:0], Clock, Dvalid, Psync
Packet type
[1] 204: (1)+187+ (16) packets
[2] 188: (1)+187 packets
[3] 204: (1+3)+184+ (16) packets
[4] 188: (1+3)+184 packets
[5] 204: (1)+203 packets
[6] 204: (1+3)+200 packets
Output sig-
nal
Common to
Clock, Data
DVALID,
PSYNC
Level (LVDS)
Offset Voltage: 1.125 to 1.35 V
Differential Output Voltage: 247 to 454 mV
Tr/Tf (20 to 80%)
T/7
Enable/Disable
Enable/disable (fixed to Low) setting
Data
Data out of PN
range
Sync: 47 h (fixed)
16 Valid extra bytes, PID: ALL1 (fixed)
DVALID
Level
Fixed to High
Clock
(byte clock)
Frequency
10 kHz to 13.5 MHz, Resolution: 1 Hz
Duty
50%
±
10%
Phase
t
Data/PSYNC
Clock
T
| t |
T/10
T=1/f

Table of Contents

Related product manuals