EasyManua.ls Logo

Baumuller BM4400 - Page 161

Baumuller BM4400
360 pages
Print Icon
To Next Page IconTo Next Page
To Next Page IconTo Next Page
To Previous Page IconTo Previous Page
To Previous Page IconTo Previous Page
Loading...
Mounting
Instruction handbook b maXX BM4400, BM4600, BM4700
Document No.: 5.12008.07
161
of 358
6
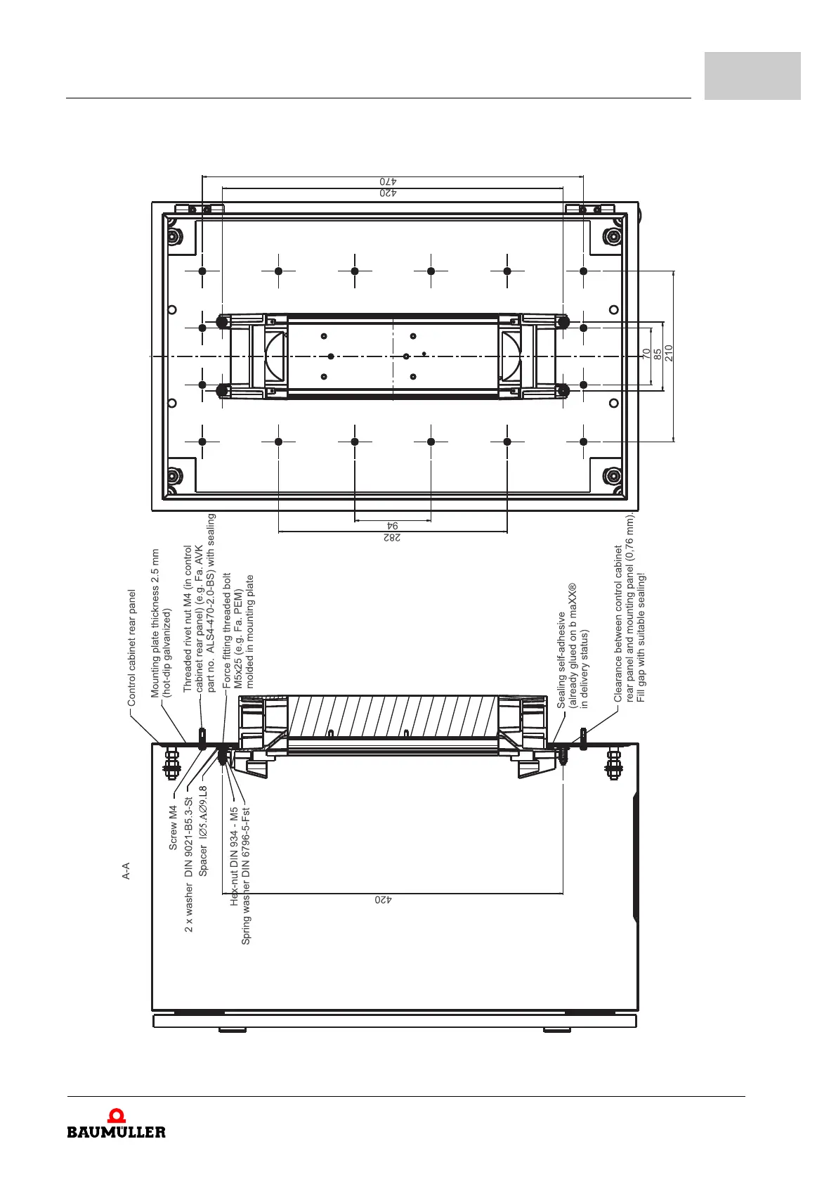
Figure 73: Control cabinet mounting BM442X-A/F

Table of Contents

Related product manuals