EasyManua.ls Logo

Baumuller BM4400 - Dimensions BM4 X5 X; Dimensions BM445 X-S;Z, BM465 X-S;Z

Baumuller BM4400
360 pages
Print Icon
To Next Page IconTo Next Page
To Next Page IconTo Next Page
To Previous Page IconTo Previous Page
To Previous Page IconTo Previous Page
Loading...
Technical Data
Instruction handbook b maXX BM4400, BM4600, BM4700
Document No.: 5.12008.07
39
of 358
3
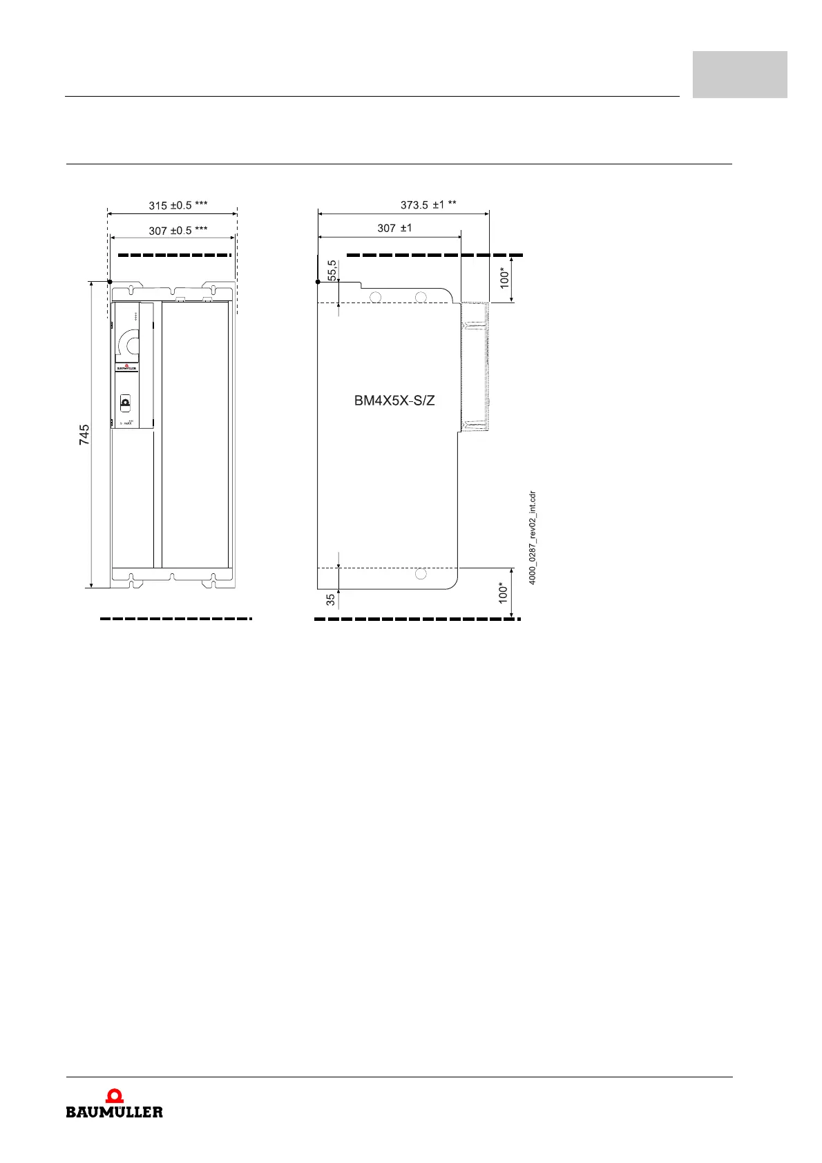
3.1.5 Dimensions BM4X5X
Figure 13: Dimensions BM445X-S/Z, BM465X-S/Z
*: Observe minimum clearance, Observe ZCoolingfrom page 61.
**: Dimensions specified with design cover. The ES controller is not
equipped with a design cover.
***: Width including screw heads.

Table of Contents

Related product manuals