EasyManua.ls Logo

BeaconMedaes TotalAlert 2 - Wiring Schematic 3: Multiplexer; Breakout Boards

Default Icon
144 pages
Print Icon
To Next Page IconTo Next Page
To Next Page IconTo Next Page
To Previous Page IconTo Previous Page
To Previous Page IconTo Previous Page
Loading...
48
6-847718-00 Rev. B00
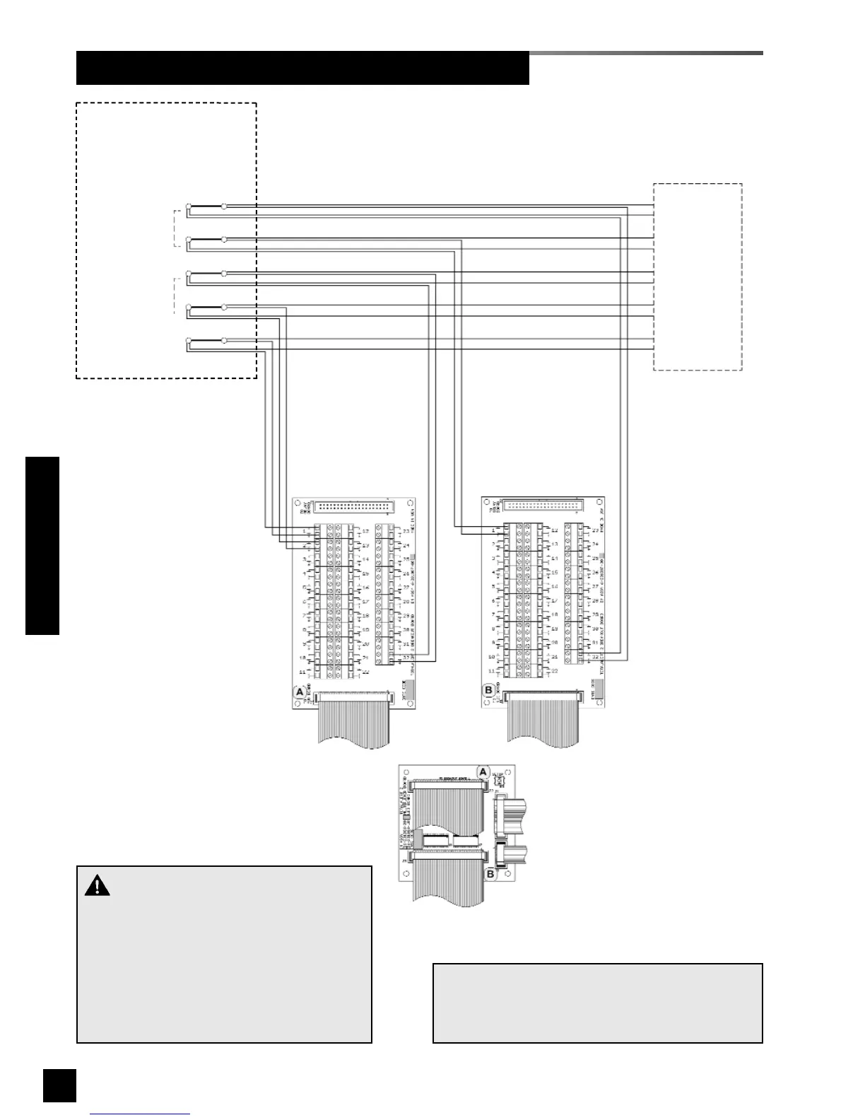
Wiring Schematic 3: Multiplexer / Breakout Boards
Wiring Schematics
20-wire ribbon cable
to modules
10-wire ribbon cable
to LED module
40-wire ribbon cable
to multiplexer module
connector A
40-wire ribbon cable
to multiplexer module
connector B
Multiplexer module
SIGNAL B32
SIGNAL B1
SIGNAL A32
SIGNAL A2
SIGNAL A1
Dry normally-closed
contacts at source
equipment or line
pressure switches
COM
+
COM
+
COM
+
COM
+
COM
+
NOTE:
Field wiring cable shields must be grounded at
only one end, inside alarm panel back box. Refer
to page 39 for details.
To additional
master alarm
panel(s)
Breakout
board A
Breakout
board B
CAUTION:
Do not connect TotalAlert 2 master/combo
alarm to switch/relay contacts connected to
any alarm panels other than those listed
below:
TotalAlert 2
MEGA2
MEGA

Table of Contents

Related product manuals