EasyManua.ls Logo

Dodge Stealth 1994 - Page 176

Dodge Stealth 1994
434 pages
Print Icon
To Next Page IconTo Next Page
To Next Page IconTo Next Page
To Previous Page IconTo Previous Page
To Previous Page IconTo Previous Page
Loading...
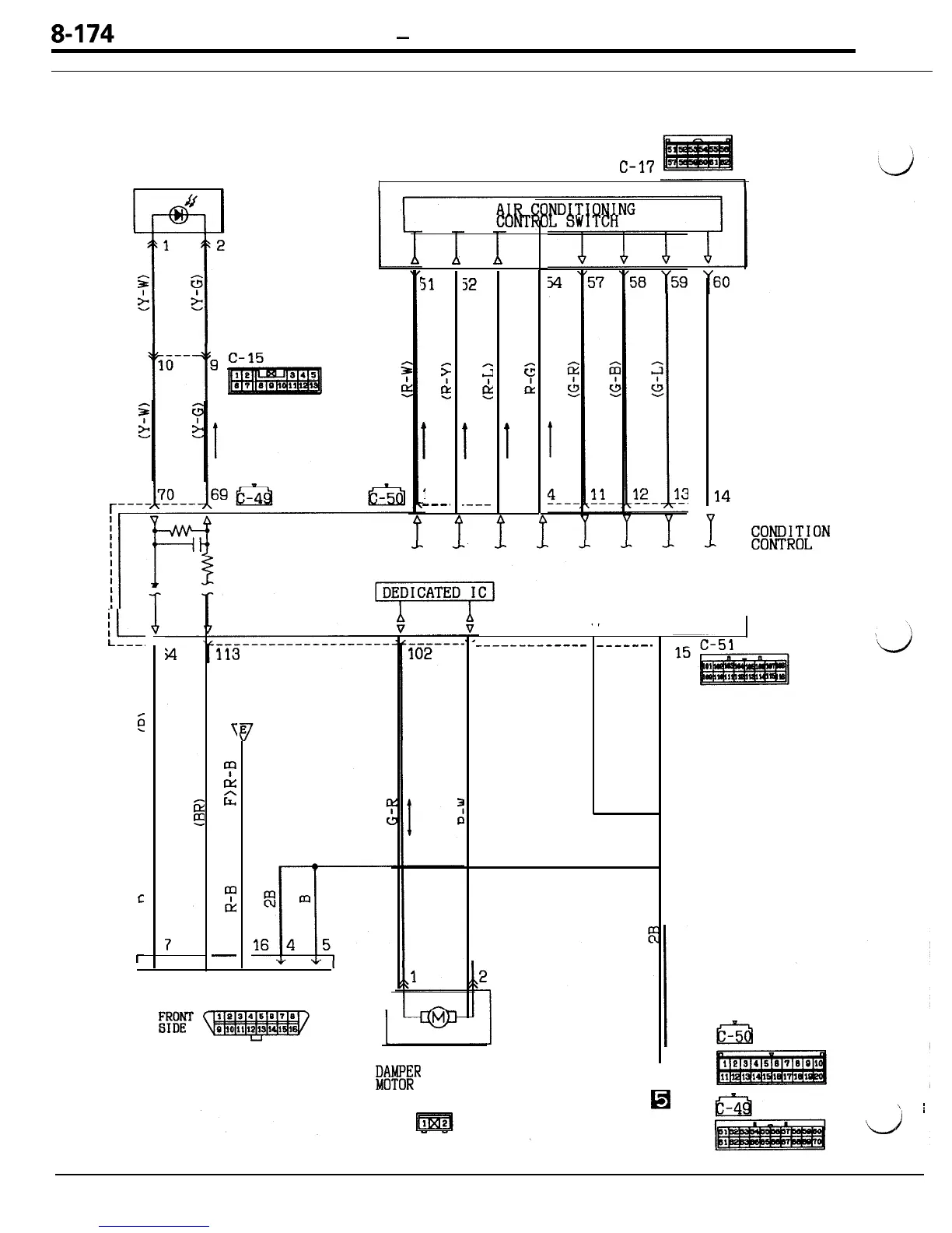
CIRCUIT DIAGRAMS
-
Full Auto Air Conditionina Circuit
FULL AUTO AIR CONDITIONING CIRCUIT
<TURBO, DOHC NON TURBO (CALIFORNIA)> (CONTINUED)
AIR CONDITIONING
CONTROL PANEL
c-17
I
PHOTO
SENSOR
D-12
ml
Jl
$
%
I
1
---.
52
7
E
I
2
.---
53
G
CL
I
3
----
i
IL
:---.
14
ING
1
AIR
fOiD;;iON
UNIT
c
r
GND
C
V
__----------
104
\;
m
CL
i2
cf
(1:
11
-
DATA LINK CONNECTOR
c-79
r
__
-------
107
m
a
AIR SELECTION
;iM&';R
CONTROL
C-28
H
'
~
d

Table of Contents

Related product manuals