EasyManua.ls Logo

Dodge Stealth 1994 - Page 177

Dodge Stealth 1994
434 pages
Print Icon
To Next Page IconTo Next Page
To Next Page IconTo Next Page
To Previous Page IconTo Previous Page
To Previous Page IconTo Previous Page
Loading...
CIRCUIT DIAGRAMS
-
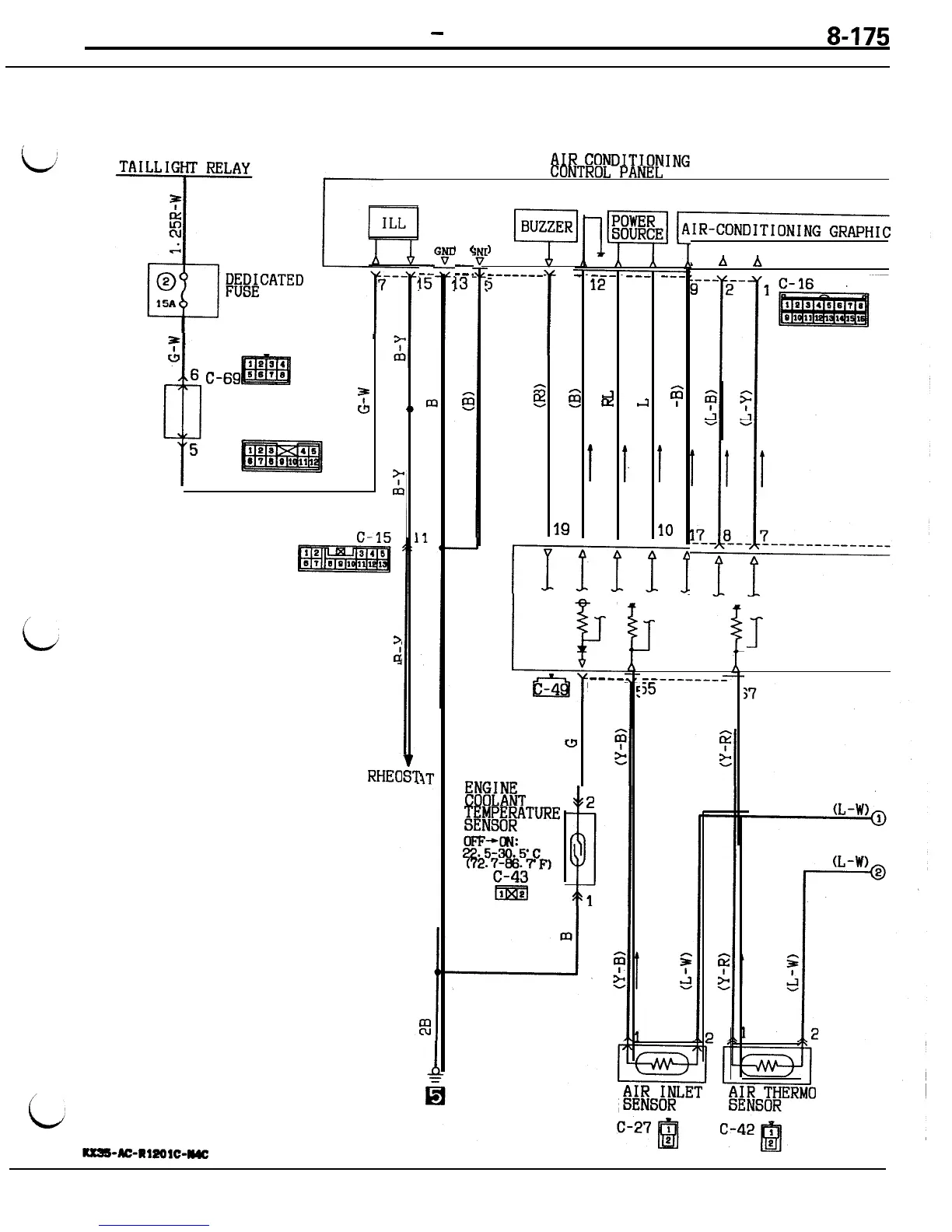
Full Auto Air Conditioning Circuit
8-175
AIR
CONDITIONING
CONTROL
PANEL
0
7
6T
1
--v-b--
__
5
11
I
T
---
---
---
12
3
4
9
9
8 @
9
02
I2
2
I
1.
I
19
20
9
IO
---
---
---
---
l-7-n-n
1
I
-
--.
13
5
I I
5
A A
-
i5
j:
W
6
C-69
J/B
P
7
w
5
C-83
LIT-
or
----_
-4 59
L
I-
?
[I
--------__
55
W
RHEO
&E&r
@#&ATURE
~~gf.&
c
(72.
;-B33T
F)
m
&kPET
&Ws;TiERMO
i
RXRR-AC-RlROlC-R4C

Table of Contents

Related product manuals