EasyManua.ls Logo

Dodge Stealth 1994 - Page 185

Dodge Stealth 1994
434 pages
Print Icon
To Next Page IconTo Next Page
To Next Page IconTo Next Page
To Previous Page IconTo Previous Page
To Previous Page IconTo Previous Page
Loading...
i
LJ
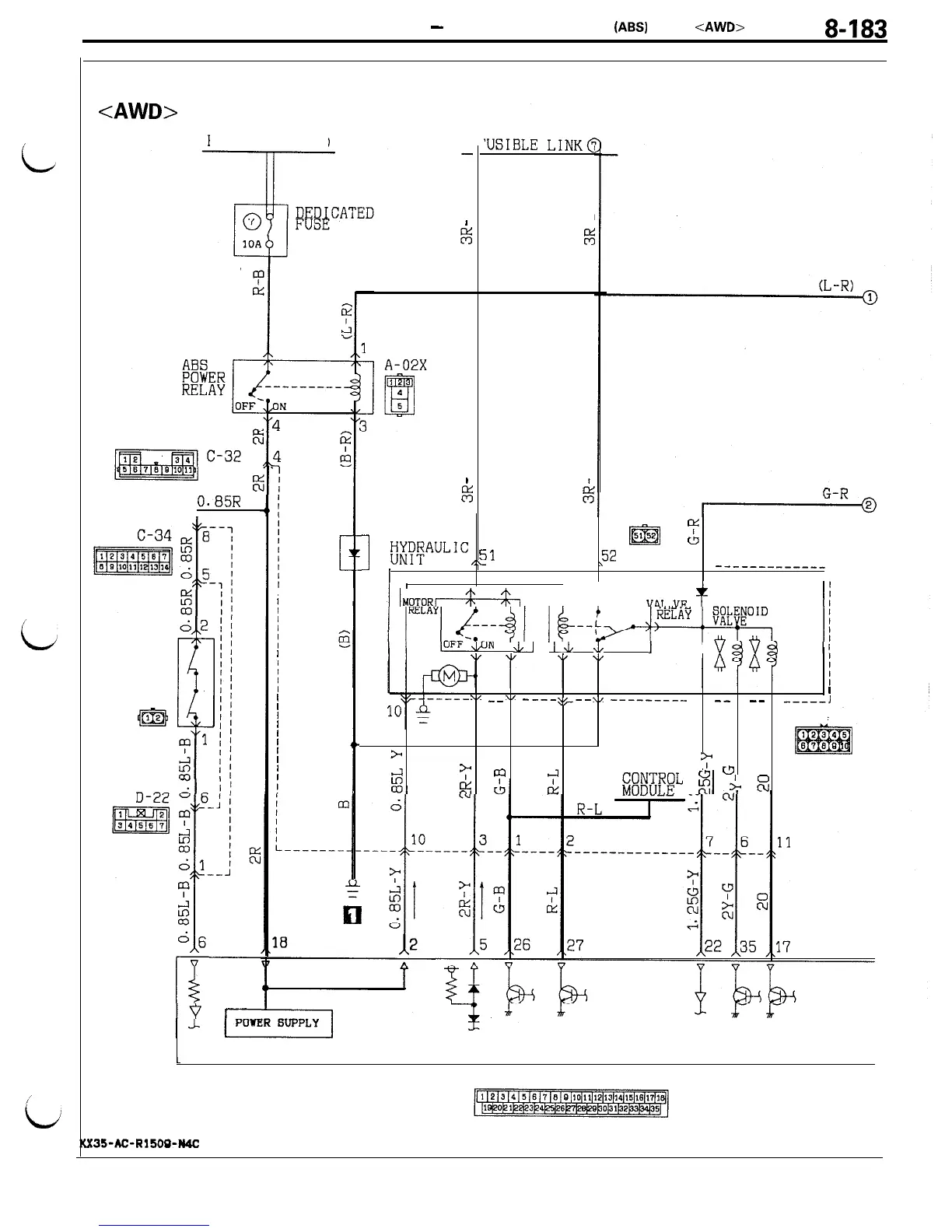
CIRCUIT DIAGRAMS
-
Anti-lock Braking System
(ABS)
Circuit
<AWD>
8-183
ANTI-LOCK BRAKING SYSTEM (ABS) CIRCUIT
<AWD>
FUSIBLE LINK@
'00
cl:
I
:
i
5
0.85R
G SENSOR
D-27
m
IT
I---
I
I
I
I
I
I
I
I
I
I
I
I
I
I
I
I
I
I
I
I
I
I
DIODE
A-68
m
I
%
m
I
55
m
I-L
-l
1
/
UiyFAULIC
5l
m
g
/L
8
-----------
,52
A-65
_----------__
I
'USIBLE
LINKG
m
I
%
I
I
ItmTORi4+4l r-k-2-l
vnr
VP
f
/
I
I
I
1;
‘&UN
&I
L&
&
I
I
VdV53
\/
w
\I
J/
I
\,
\I
--
----
\/+
--
\I
-__----__
--
--
-----J
2
1
4
9
7
5
3
A-64
m
4c
>
I
ii3
?+
m
lIti
CL,
;-7
ENGINE
?+
w
m,
n,, lx.
##;I;f$jL
g.
G-
E
-.I
I
ABS
E-12
CONTROL
UNIT
(35-AC-R150Q-MC

Table of Contents

Related product manuals