EasyManua.ls Logo

Dodge Stealth 1994 - Page 184

Dodge Stealth 1994
434 pages
Print Icon
To Next Page IconTo Next Page
To Next Page IconTo Next Page
To Previous Page IconTo Previous Page
To Previous Page IconTo Previous Page
Loading...
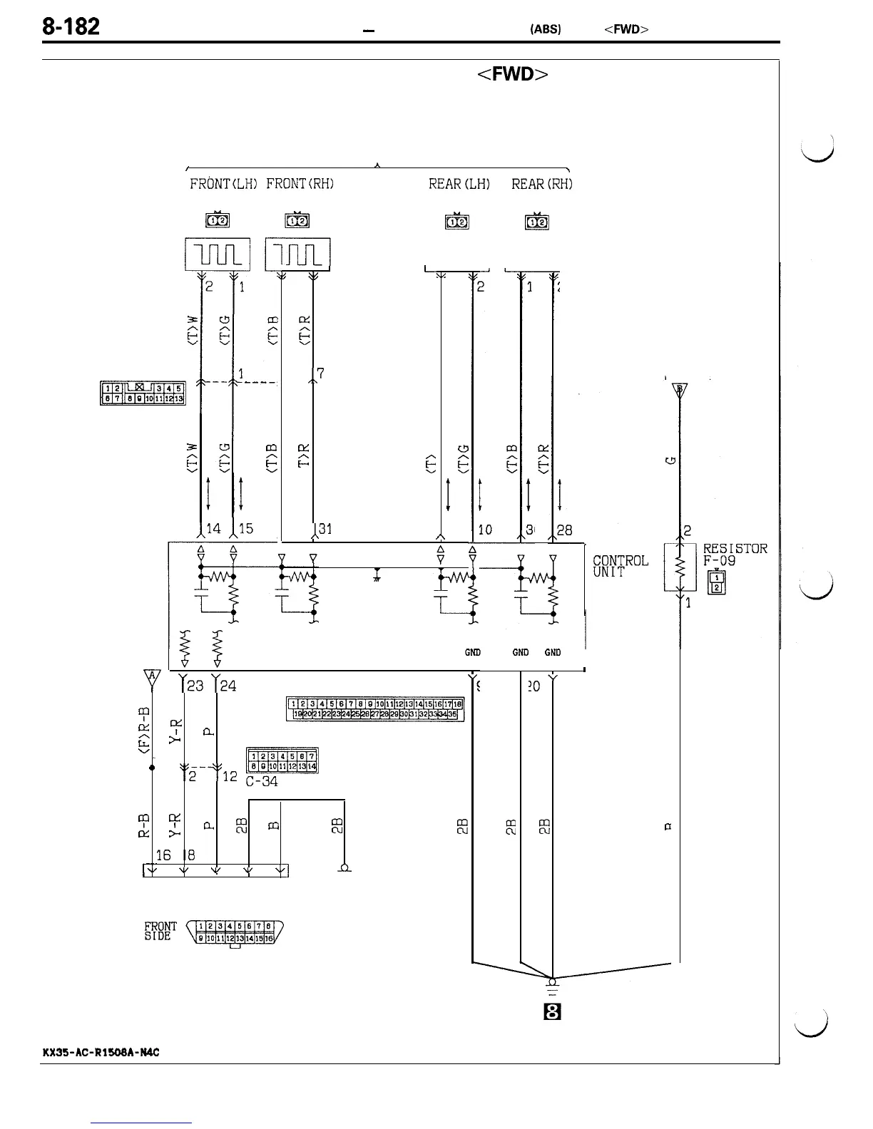
8-182
CIRCUIT DIAGRAMS
-
Anti-lock Braking System
(ABS)
Circuit
<FWD>
ANTI-LOCK BRAKING SYSTEM (ABS) CIRCUIT
<FWD>
(CONTINUED)
SPEED SENSOR
I
.A
\
FRhlT(LH)
FRONTCRH) REAR(LH)
REAR(RH)
A-29
l@g
A-12
E-19 E-16
@
m
@J
mm-
>
YY
2 1
I
L-
\\f
12
6
,,7
---
\,
\,
1
I
W
e
I
A
*
11
a
A
$
ifi
T-.-s
E
3
G
e
t I
33
/\31
h
‘z;
u
E
0
A A
-i?i
31
s
c-33
pl%%Eiq
!
w
m
E
E
2 1
I,
*--
--_-
m
E
m
A
Y
a
i2
>
"
.
0
$:5-+2
p$q
m
[1:
d:
&
a
w
m %
2
168
7 4 5
Iv
w
"
"
WI
II
I
1
DATA LINK
CONNECTOR
6
c-79
RF
STOP
LIGHT
SWITCH
GtUl GND GND
V v v
Q
.
k3
h
E-12
!
,
V
!O
34
%
ll
ABS
SKRoL
KX35-AC-Rl508A-R4C

Table of Contents

Related product manuals