EasyManua.ls Logo

Dodge Stealth 1994 - Page 190

Dodge Stealth 1994
434 pages
Print Icon
To Next Page IconTo Next Page
To Next Page IconTo Next Page
To Previous Page IconTo Previous Page
To Previous Page IconTo Previous Page
Loading...
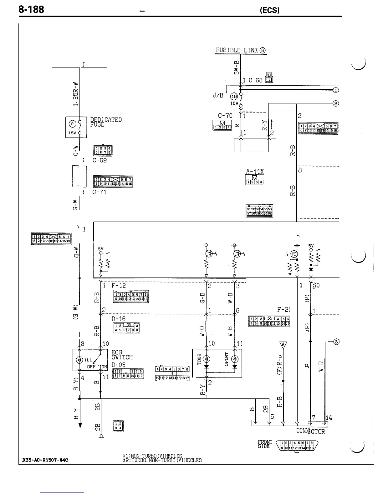
8-188
CIRCUIT DIAGRAMS
-
Electronic Control Suspension
(ECS)
Circuit
ELECTRONIC CONTROL
SUSPENSION (ECS) CIRCUIT
TAILLIG
ti
J/B
'
[1
D-44
3
s
F-2(
12
c?
---
pl?R$mg
G
10
11
i
COMBINATION
(
METER
5
f-2
iI
:
m
D-03
=I
d:
G
1
CL
5:
0;
Y2
U-2
r
RELAY
\
J
J/B
@
10A
\,
c-70
“I
------
'2
,,l
P. /\
cp
IOD OR
Di
STORAGE
CONNECTOR
A-11X
B5J
12 3 4
a
d:
ELECTRONIC CONTROL
SUSPENSION
CONTROL UNIT
F-13
@
i?
c-77
--------_-__
8
62
.-------____
.
2
-------
j0
-0
%
Y
z
Rz
a
, D-41
"2
4
5
16 3
t
E
[-
v
RHEOSTAT
n
DATA LINK
CONNI
c-79
a
EP
NOTE
%l:NON-TURBO(VIHECLE5
FOR FEDERAL AND CANADA)
di
X35-AC-R¶5O‘?-N4C
x2:TURBO,NON-TUREIOWIHECLES
FOR CALIFORNIA)

Table of Contents

Related product manuals