EasyManua.ls Logo

Dodge Stealth 1994 - Page 196

Dodge Stealth 1994
434 pages
Print Icon
To Next Page IconTo Next Page
To Next Page IconTo Next Page
To Previous Page IconTo Previous Page
To Previous Page IconTo Previous Page
Loading...
CIRCUIT DIAGRAMS
-
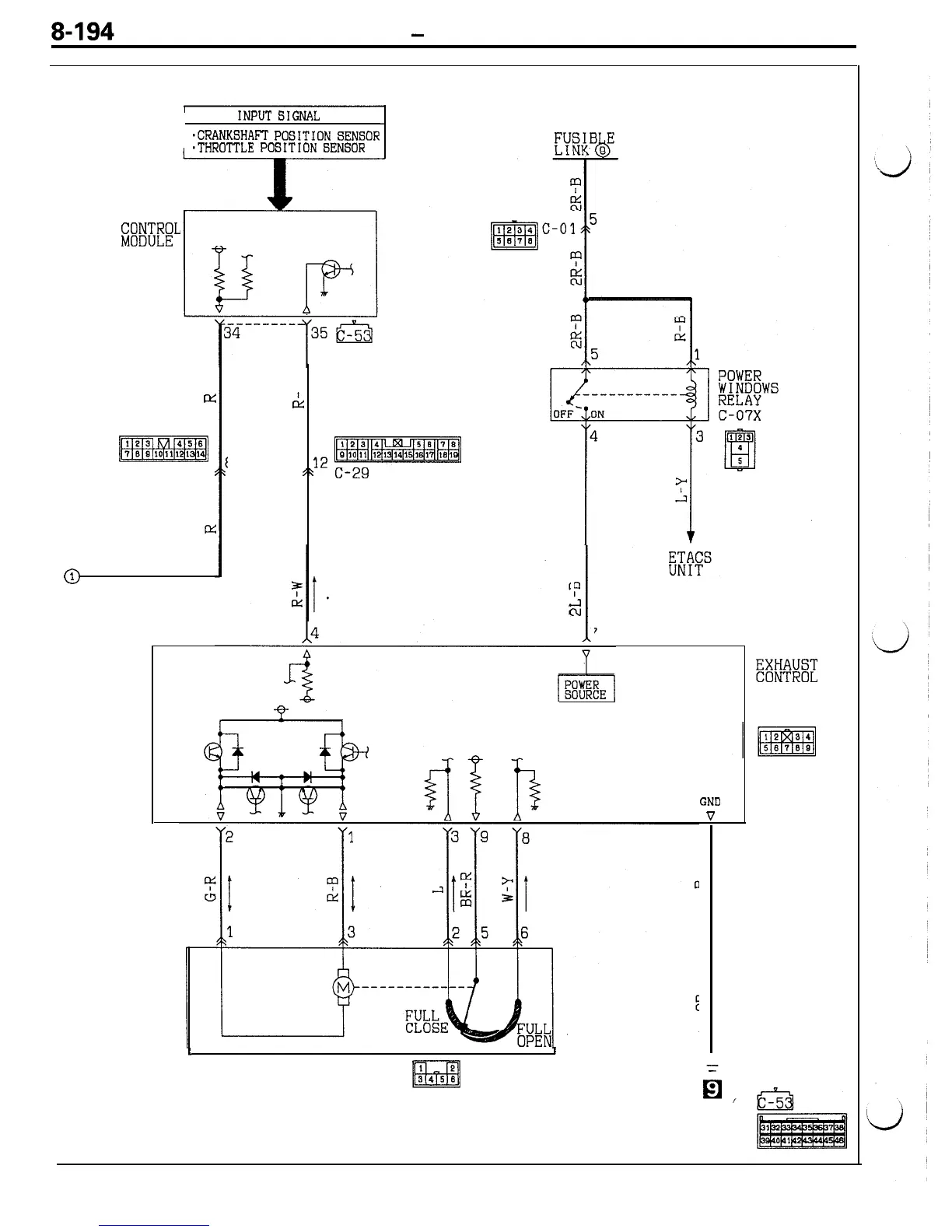
Active Exhaust System Circuit
ENGINE
%%E#L
ACTIVE EXHAUST SYSTEM CIRCUIT (CONTINUED)
I
INPUT
SIGNAL
*CRANKSHAFT
POSITION
SENSOR
*THROTTLE
POSITION
SENSOR
p:
-1
c-14
es
@
R
5
&
3
/\
,,pJ$EEmq
m
Ii
ti
7
GND
V
L
I
ACTUATOR
F-29
1
2
ASSEMBLY
lepBl
3458
ACTIVE
E%E
MODULE
F-26

Table of Contents

Related product manuals