EasyManua.ls Logo

Dodge Stealth 1994 - Page 198

Dodge Stealth 1994
434 pages
Print Icon
To Next Page IconTo Next Page
To Next Page IconTo Next Page
To Previous Page IconTo Previous Page
To Previous Page IconTo Previous Page
Loading...
8-196 CIRCUIT DIAGRAMS
-
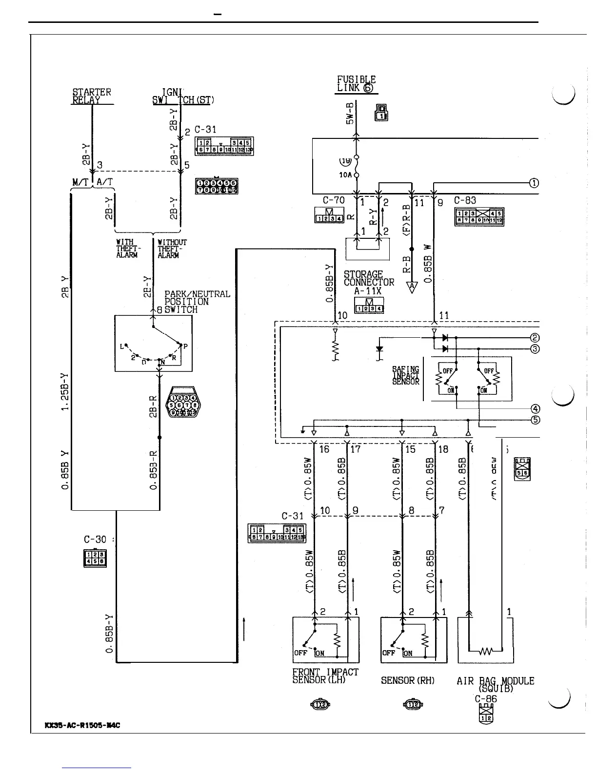
Supplemental Restraint System (SRS) Circuit
SUPPLEMENTAL RESTRAINT SYSTEM (SRS) CIRCUIT
EYWIiB
E
b
TION
CH(ST)
IGN
SW1
m
I
z
1
Bl
1
1 C-68
J/B
A
w
A-67
YOA
@
\I
\/ \I
\/
,.
I\
-
()
2s
I
IOD OR
;
:%$&R
v
:
d
>
I
E
>
I
!?
s
>
I
?I
d
I
I
I
I
I
I
I
I
I
I
I
1
I
I
%.x&
SENSOR
I,
7 B-26
I
----
3
2
0
C
c
2
j
D-24
A/T
M/T
c-30
:
~EW~RV%PCT
FRONT IMPACT PASSENGER'S
SENSORtRH)
A-38 A-63
@D
A1R;18$PE
Kxm-AC-Rlsos-1

Table of Contents

Related product manuals