EasyManua.ls Logo

Dodge Stealth 1994 - Page 297

Dodge Stealth 1994
434 pages
Print Icon
To Next Page IconTo Next Page
To Next Page IconTo Next Page
To Previous Page IconTo Previous Page
To Previous Page IconTo Previous Page
Loading...
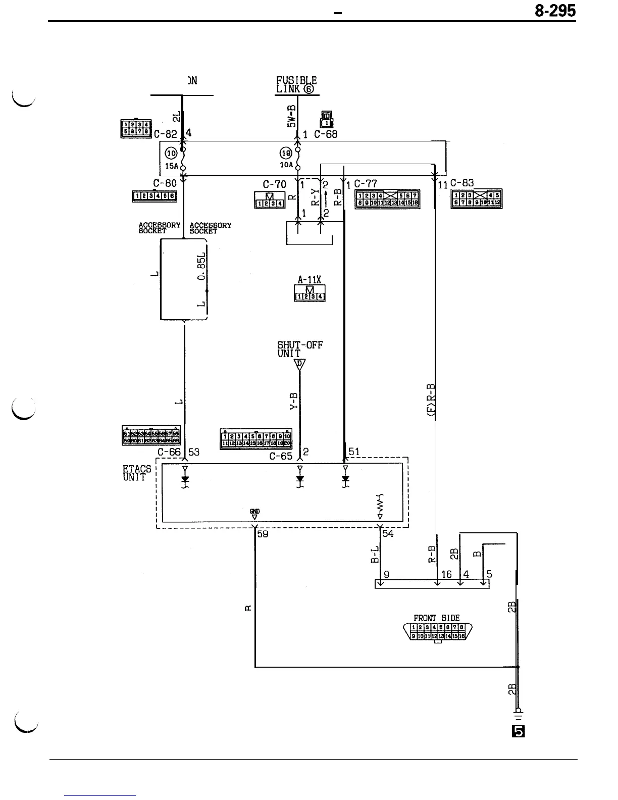
CHASSIS ELECTRICAL
-
Lighting System
8-295
L
:
IGNIT
SWITC
J/B
C
@'
15A
C-80'
pTzmm=j
WITHOUT
$ggCXFORY
i
IN
(ACC)
EYWkBsE
b
m
I
z
lo
Bl
,,l
C-b8
/h
lOA&
1
WITH
&Xff~ORY
I\
I\
I
IOD OR
STORAGE
CONNECTOR
A-11X
IZEI
3194
LIGHT
AUTOMATIC
#F°FF
a
4
a
-I
1C-83
P
c
$2
m
4-L-r
16 4 5
DATA LINK CONNECTOR
c-79
FRONT
SIDE

Table of Contents

Related product manuals