EasyManua.ls Logo

Dodge Stealth 1994 - Page 298

Dodge Stealth 1994
434 pages
Print Icon
To Next Page IconTo Next Page
To Next Page IconTo Next Page
To Previous Page IconTo Previous Page
To Previous Page IconTo Previous Page
Loading...
8-296
CHASSIS ELECTRICAL
-
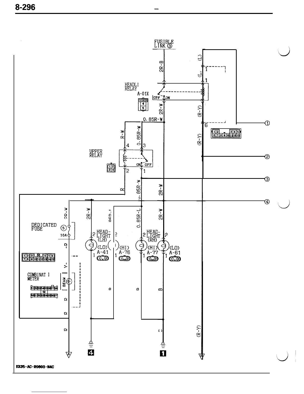
Lighting System
(VEHICLES FOR CANADA)
<VEHICLES WITHOUT THEFT-ALARM SYSTEM>
CIRCUIT DIAGRAM
.----__
1
1
1
3
1
c
5
@e;L$
GHT
A-01X
r
_-------_____
3N
4
129
83
IE
4
5
I
.------A
6
c-31
0
&[%y BEAM
A-75
12
ml
0
94
2
T
3
i
=
-
-0FFJ
1
ā€
m
7
:
a
C
?
pp
>
(
(LO>
I&??$
[I
m
n
0
$)&CATED
r
0
!
pp
>
(HI)
m
0
1
14
.--
1
I
I
56
i
I
I
I
I
I
55
I
I
15
:
.--J
I
>
(LO)
1%
I
10A
D!
1
D-4;
a
;
-
5’
-
u
12:
fOUB;NAT
I
ON
D-04
0
ctc
um5-Ac-Rama-w4c
II

Table of Contents

Related product manuals