EasyManua.ls Logo

Dodge Stealth 1994 - Page 299

Dodge Stealth 1994
434 pages
Print Icon
To Next Page IconTo Next Page
To Next Page IconTo Next Page
To Previous Page IconTo Previous Page
To Previous Page IconTo Previous Page
Loading...
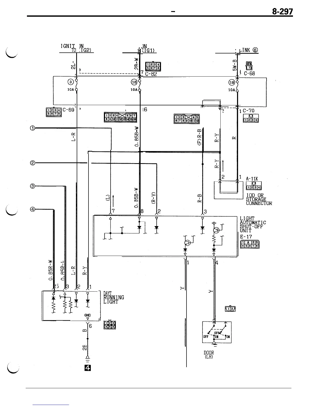
CHASSIS ELECTRICAL
-
Lighting System
8-297
IGNIT
SW I
TCI
m
I
ti!
IN
:IG2)
IGNIT
SWITC
3
I
I
tt
L--------------------
f!Gl)
FUSIBLE
AINK
8
B
C-l68
J/B
63
10A
63
10A
16
C-83 11
I
,
c-77
1
z
I
i.8
a3
d
r-
-
-i
;
d
j
-
t--
1
DAYT
I ME
K!!fNG
CONTROL
UNIT
ml
2 E-21
t
A-74
Y
I#
SWITCH
7

Table of Contents

Related product manuals