EasyManua.ls Logo

Eaton PowerXL DC1 - Dc1-12

Eaton PowerXL DC1
179 pages
To Next Page IconTo Next Page
To Next Page IconTo Next Page
To Previous Page IconTo Previous Page
To Previous Page IconTo Previous Page
Loading...
3 Installation
3.7 Block diagrams
DC1 Variable Frequency Drive 04/16 MN04020003Z-EN www.eaton.com 105
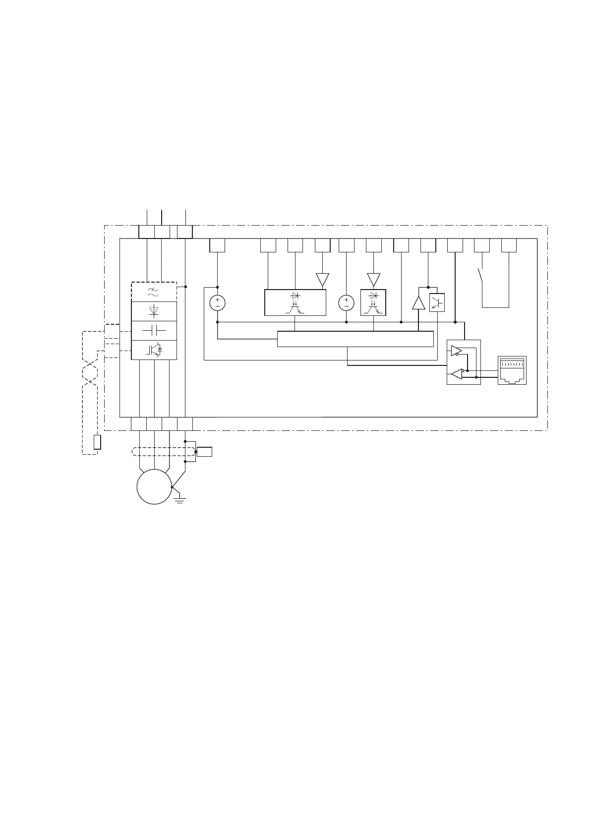
3.7.8 DC1-12…-A66N
Mains voltage U
LN
: single-phase, 200 (-10 %) - 240 (+10 %) V, 50/60 Hz
Motor voltage U
2
: 3-phase, U
2
= U
LN
, 0 - 50/60 Hz (max. 500 Hz)
Size: FS1, FS2 and FS3 with IP66 degree of protection
Figure 68: Block diagram DC1-12…-A66N
Variable frequency drive with IP66 degree of protection, local controls,
single-phase mains supply voltage, and three-phase motor connection
DC+
BR
3 AC 230 V
WVU
M
3 ~
2
DI1
3
DI2
4
DI3
(AI2)
5
+10 V Out
< 10 mA
6
AI1
(DI4)
7
0 V
1
+24 V Out
< 100 mA
L1/L
8 9 10
L2/N
11
6 A, 250 VAC
5 A, 30 VDC
CPU
1 AC 200 - 240 V
50/60 Hz
PES
R
B
AO
(DO)
0 V
RS485
Modbus RTU
CANopen
OP-Bus
X1
Frame sizes FS2 and FS3 with connection for external brake resistors
DC1-12xxxN…: without radio interference suppression filter
DC1-12xxxF…: with built-in radio interference suppression filter

Table of Contents

Other manuals for Eaton PowerXL DC1

Related product manuals