EasyManua.ls Logo

EWM PHOENIX 421 EXPERT forceArc - Page 125

EWM PHOENIX 421 EXPERT forceArc
146 pages
Print Icon
To Next Page IconTo Next Page
To Next Page IconTo Next Page
To Previous Page IconTo Previous Page
To Previous Page IconTo Previous Page
Loading...
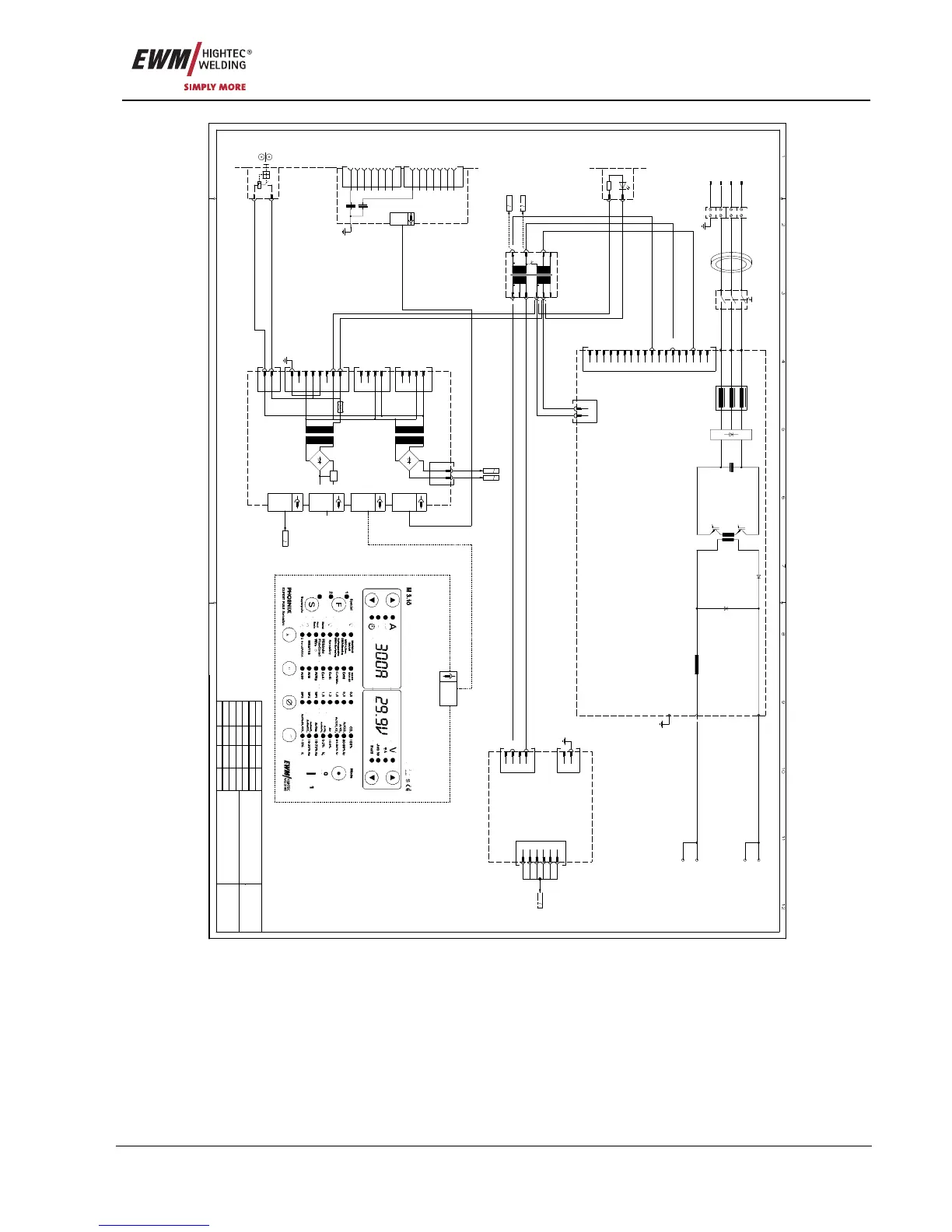
Circuit diagrams
PHOENIX 301 EXPERT forceArc
Item No.: 099-004833-EWM01 125
A1-L1
A1-L2
A1-L3
Q1-
L1
L2
L3
T1
T2
T3
Xx-
L1
L2
L3
PE
L1
L2
L3
PE
X5-
L1
L2
L3
PE
Ringkern
n=3Wdg.
3
400VAC
6
230VAC
9
0VAC
6
400V/415V
1
42VAC
2
0VAC
1
Absicherung
2
Absicherung
PE2-
T?
1
1
?T
2
?T
9
0V
11
25V
4
230V
2
0V
A
3 7
B
3 7
1
42VAC
2
0VAC
1
2
4A
F4-
X7/10
X7/11
X7/12
X7/13
X7/14
X7/15
X7/16
X7/17
X7/18
X7/1
X7/2
X7/3
X7/4
X7/5
X7/6
X7/7
X7/8
X7/9
L1
L2
L3
PE
-
+
A1-
D C 3 0 1
X5/1
X5/2
X5
X7
42V
RSGND
RXD
TXD
RS+12V
0V
Schirm X1/7
X1/6
X1/5
X1/4
X1/3
X1/2
X1/1
42V
RXD
RSGND
TXD
RS+12V
0V
Schirm X2/7
X2/6
X2/5
X2/4
X2/3
X2/2
X2/1
2x2n2F
Stecker X3
D-SUB
15polig
A7-
VP5/2D
Temp
105°C
8
6
4
2
16
14
15
11
9
T3-
10
-
+
X8/2
X8/1
15polig
D-Sub.
15polig
D-Sub.
15polig
D-Sub.
15polig
D-Sub.
X3/1
X3/2
X3/3
X3/4
X1/1
X1/2
X1/3
X1/4
X1/5
X1/6
X1/7
X1/8
T2
4AT
F1
T1
12V
W K - 6
A6-
X9/1
X9/2
X2/1
X2/2
X2/3
X2/4
X7
X6
X5
X4
63
F
1
Fühlerspg.
2
Fühlerspg.
3 8
D
3 8
E
A4-
LDC2
X2/1
X2/2
X2
X2/3
X2/4
X2/5
X2/6
X3/1
X3/2
X3
X1/1
X1/2
X1
X1/3
X1/4
83
C
D-Sub.
15polig
M 3 1 0
A8-
Ausführung EXPERT
Ausführung Wassergekühlt
1
PE
1
PE
K
A
LED grün
H1-
0V
42V
1
PE
8
PE
6
0V
1
25VAC
3
0VAC
1
+18V
2
+8V
3
0V
4
-18V
5
UD
Optional:
Datum: Name:
gezeichnet:
geprüft:
Freigabe:
Änderung-4:
Änderung-3:
Änderung-2:
Änderung-1:
01.02.2007 NIEDENTHAL
Blatt: / 3
This drawing is protected by copyright.
It may not be reproduced or utilised in any way
or communicated or forwarded to third parties
without our express permission!
2
PHOENIX 301 P/E DG/W
4645-00
Zeichnungsnummer:
MIG-GERAET, 3X400V FAHRBAR
Figure 11-2

Table of Contents

Related product manuals