EasyManua.ls Logo

EWM PHOENIX 421 EXPERT forceArc - Page 126

EWM PHOENIX 421 EXPERT forceArc
146 pages
Print Icon
To Next Page IconTo Next Page
To Next Page IconTo Next Page
To Previous Page IconTo Previous Page
To Previous Page IconTo Previous Page
Loading...
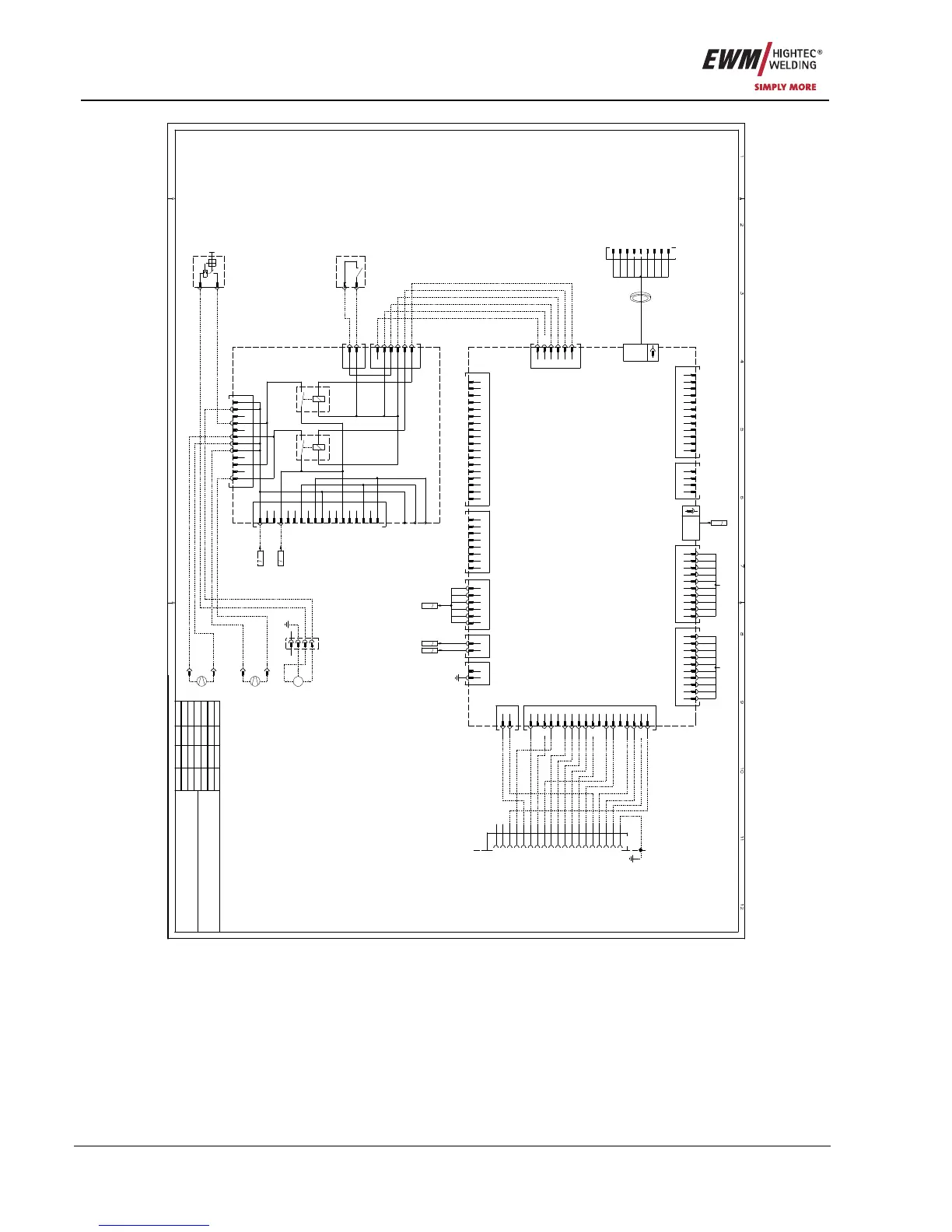
Circuit diagrams
PHOENIX 301 EXPERT forceArc
126 Item No.: 099-004833-EWM01
X5/1
X5/2
X5/3
X5/4
X5/5
X5/6
X5/7
X5/8
X5/9
X5
Robo./Auto.
X5/10
X5/11
X5/12
X5/13
X5/14
X5/15
X5/16
X5/17
X5/18
X6/2
X6/1
X6
Not/Aus
X1/10
X1/11
X1/12
X1/13
X1/14
X1/15
X1/16
X1/17
X1/18
X1/1
X1/2
X1/3
X1/4
X1/5
X1/6
X1/7
X1/8
X1/9
Inverter sekundär
X1
X3/8
X3/7
X3/6
X3/5
X3/4
X3/3
X3/2
X3/1
Inverter primär
X3
X4/6
X4/5
X4/4
X4/3
X4/2
X4/1
X4
Versorgung
X-PE
X-PE/1
X-PE/2
Erdung
X10/1
X10/2
Fühlerspannung
X10
D-Sub.
Computer
X7
9polig
X9/1
X9/2
X9/3
X9/4
X9/5
X9/6
Wasserkühler
X9
X19
AC Inverter
X19/12
X19/11
X19/10
X19/9
X19/8
X19/7
X19/6
X19/5
X19/4
X19/3
X19/2
X19/1
D-Sub.
15polig
X8
Systembus
X2/4
X2/3
X2/2
X2/1
X11/10
X11/9
X11/8
X11/7
X11/6
X11/5
X11/4
X11/3
X11/2
X11/1
X11
Programmierstecker
X20/10
X20/9
X20/8
X20/7
X20/6
X20/5
X20/4
X20/3
X20/2
X20/1
X20
Programmierstecker
M 3 2 0 / 1
A2-
NC
NC
+5V2
MSO
SCK
MOSI
RESET
0V2
NC
NC
0V
0V
CAN_RXD
RESET
CAN_TXD
RXD1
EXT_INT
TXD1
+5V
+5V
X2
Lüfter
1
Pumpe
2
Lüfter
3
+15V
4
Wassermangel
5
Wasserkühler
6
0V
1
Pumpe
2
Lüfter
3
+15V
4
Wassermangel
5
Wasserkühler
6
0V
1
+18V
2
+8V
3
0V
4
-18V
5
UD
6
0V
C
122
1
Fühlerspannung
2
Fühlerspannung
D
62
E
62
PE
PE5-
X6-
2
3
4
5
6
7
8
9
1
NC
PC-RXD
PC-GND
NC
NC
PC-TXD
PC-DTR
PC-RTS
NC
1Wdg. durchgezogen
Ringkern
F
62
LüfterPumpe
X5/1
X5/2
X4/1
X4/2
X4/3
X4/4
X4/5
X4/6
W K 7
A5-
Lüfter
Pumpe
+15V
Lüfter
Pumpe
0V
X3/10
X3/11
X3/12
X3/1
X3/2
X3/3
X3/4
X3/5
X3/6
X3/7
X3/8
X3/9
X2/10
X2/11
X2/12
X2/13
X2/14
X2/15
X2/16
X2/17
X2/18
X2/1
X2/2
X2/3
X2/4
X2/5
X2/6
X2/7
X2/8
X2/9
X1/1 460V
X1/2 400V
X1/3 0V
33 44
X2
X3
X4
X5
1
C
2
NO
1
2
P>0
F6-
1
Druckwächter
2
?T
15
230VAC
18
0VAC
A
22
B
22
1
Lüfter
5
0V
6
0V
7
Lüfter
9
Pumpe
11
0V
1~
Lüfter
M2-
1
2
1~
Lüfter
M3-
1
2
1
?T
2
?T
Pumpe
1~
M
M4-
bl
T1?
1
X7-
2
sw
T2?
3
gnge
T3?
4
T4.1? T4?
1
PE2-1
1
Iist
2
REGaus
3
SYN_E
4
IGR0
6
0V
7
+15V
9
IGR0
10
Uist
11
VSchweiss
12
SYN_A
13
STA/STP
15
0V
16
-15V
18
IGR0
1
Not/Aus
2
Not/Aus
A
B
C
D
E
F
G
H
J
K
L
M
N
P
R
S
T
U
V
PE
REGaus
SYN_E
IGR0
Not/Aus
0V
IGR0
Uist
VSchweiss
SYN_A
STA/STP
+15V
-15V
IGR0
Not/Aus
0V
Iist
NC
NC
X8-
PE-1
T?
1
1
2
2.5A
F5-
Ausführung EXPERT
Option bei PROGRESS
Ausführung Wassergekühlt
Datum: Name:
gezeichnet:
geprüft:
Freigabe:
Änderung-4:
Änderung-3:
Änderung-2:
Änderung-1:
01.02.2007 NIEDENTHAL
Blatt: / 3
This drawing is protected by copyright.
It may not be reproduced or utilised in any way
or communicated or forwarded to third parties
without our express permission!
3
PHOENIX 301 P/E DG/W
4645-00
Zeichnungsnummer:
MIG-GERAET, 3X400V FAHRBAR
Figure 11-3

Table of Contents

Related product manuals