EasyManua.ls Logo

Hitachi 65 - Figure 1-8 Exterior View (Vertical Installation)

Hitachi 65
281 pages
Print Icon
To Next Page IconTo Next Page
To Next Page IconTo Next Page
To Previous Page IconTo Previous Page
To Previous Page IconTo Previous Page
Loading...
1. GETTING STARTED
1-18
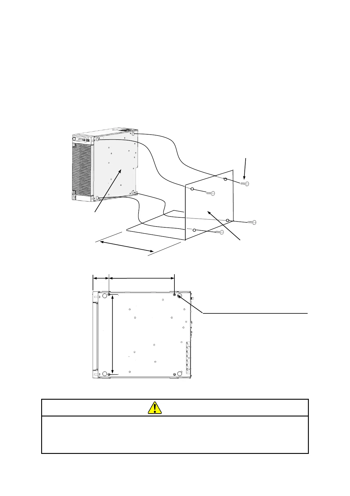
(c) Vertical Installation
When you install the equipment vertically, the status display lamps must come at the
upper side and make sure the equipment is placed so it does not fall.
When you mount the equipment vertically, prepare a mounting metal fitting as shown in the
figure below and use it to secure the equipment.
The mounting metal fitting for vertical installation must be secured to a mounting chassis or
rack with casters using set screws at both the upper and lower positions.
For information about how to remove rubber feet, see 6.3.9 Attaching and removing
rubber feet”.
Figure 1-8 Exterior View (Vertical Installation)
CAUTION
Falling or dropping of the Equipment vertically placed on the desktop may cause
injury. Be sure to attach the vertical stand accompanying the Equipment and
place the Equipment with the vertical stand on a level surface.
Mounting Metal Fitting for Vertical Installation
Use a steel plate.
The thickness must be 3mm or more.
The bottom of the equipment
150mm or more
Four M4 screws
Four M4 (acceptable depth is 8 mm or less)
367mm
Front side
301mm
74.5mm

Table of Contents

Related product manuals