EasyManua.ls Logo

HPE ProLiant DL325 Gen10 Plus

HPE ProLiant DL325 Gen10 Plus
174 pages
To Next Page IconTo Next Page
To Next Page IconTo Next Page
To Previous Page IconTo Previous Page
To Previous Page IconTo Previous Page
Loading...
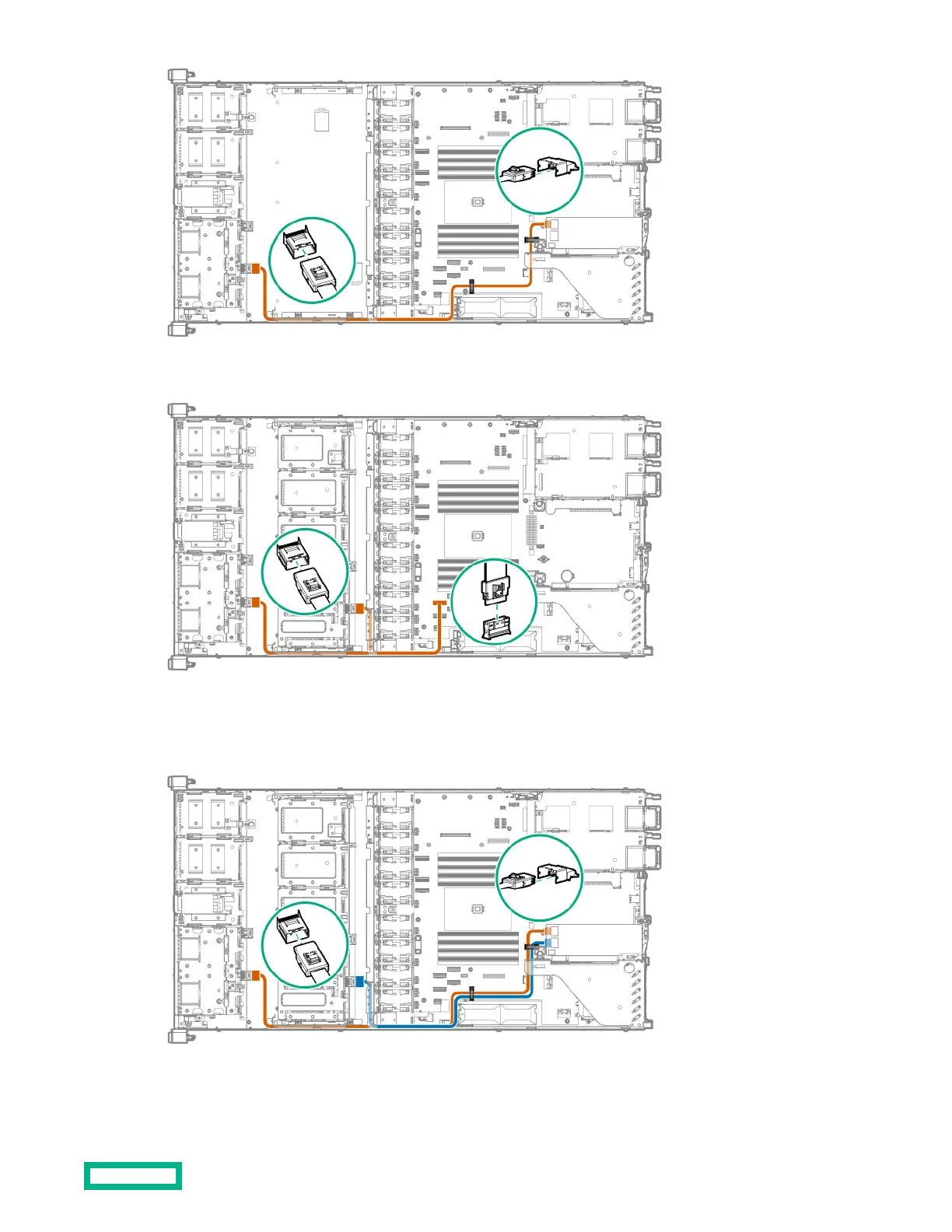
• 2+2SFF SAS/SATA/uFF drives installed in outer and inner cages (box 2 and 4) and connected to system board
• 2+2SFF SAS/SATA drives installed in outer and inner cages (box 2 and 4) and connected to type-p storage controller
This illustration shows the cabling for type-p storage controller installed in slot 2. The cabling for type-p storage
controller installed in slot 3 is similar.
Cabling
157

Table of Contents

Other manuals for HPE ProLiant DL325 Gen10 Plus

Related product manuals