EasyManua.ls Logo

HPE ProLiant DL325 Gen10 Plus

HPE ProLiant DL325 Gen10 Plus
174 pages
To Next Page IconTo Next Page
To Next Page IconTo Next Page
To Previous Page IconTo Previous Page
To Previous Page IconTo Previous Page
Loading...
Item Description
Pink Slimline cable from box 4 drive backplane port 1 to port 7A on 1-port NVMe adapter
Green OCP x16 cable from OCP x16 connector to port 6A on system board
• Power cabling
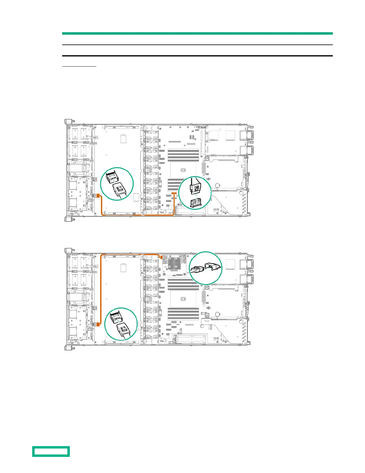
Cable routing: 2SFF/2+2SFF SAS/SATA/uFF drives
• 2SFF SAS/SATA/uFF drives installed in outer cage (box 2) and connected to system board
• 2SFF SAS/SATA/uFF drives installed in outer cage (box 2) and connected to type-a storage controller
• 2SFF SAS/SATA/uFF drives installed in outer cage (box 2) and connected to type-p storage controller
This illustration shows the cabling for type-p storage controller installed in slot 2. The cabling for type-p storage
controller installed in slot 3 is similar.
Cabling
156

Table of Contents

Other manuals for HPE ProLiant DL325 Gen10 Plus

Related product manuals