EasyManua.ls Logo

Huawei NetCol5000-A035 - Page 55

Huawei NetCol5000-A035
244 pages
Print Icon
To Next Page IconTo Next Page
To Next Page IconTo Next Page
To Previous Page IconTo Previous Page
To Previous Page IconTo Previous Page
Loading...
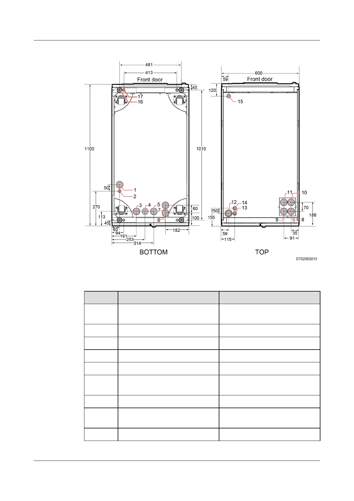
Figure 3-17 Ports on the bottom and top panels for other codes (unit: mm)
Table 3-11 Pipeline port parameters
Number
Port Inner Diameter of Port
1 Lower strong electricity cable
port (including ground cable)
Φ43 mm
2 Lower weak electricity cable port Φ18 mm
3 Lower liquid pipe port Φ50 mm
4 Water self-drainpipe outlet port Φ50 mm
5 Lower gas pipe port Φ50 mm
6 Lower condensate pump
drainpipe port
Φ50 mm
7 Lower humidier inlet pipe port Φ50 mm
8 Upper condensate pump
drainpipe port
Φ43 mm
9 Upper humidier inlet pipe port Φ43 mm
NetCol5000-A(025, 035) In-row Air Cooled Smart
Cooling Product
User Manual (600 mm Width) 3 Installation Guide
Issue 17 (2020-10-22) Copyright © Huawei Technologies Co., Ltd. 45

Table of Contents

Other manuals for Huawei NetCol5000-A035

Related product manuals