EasyManua.ls Logo

Huawei SmartAX MA5608T - Page 974

Huawei SmartAX MA5608T
977 pages
Print Icon
To Next Page IconTo Next Page
To Next Page IconTo Next Page
To Previous Page IconTo Previous Page
To Previous Page IconTo Previous Page
Loading...
Table 6-38 LEDs on the front panel of the SPD28SZ surge protector.
LED Status Description
Working LED Green The surge protector works in the normal
state.
Red The surge protector is faulty.
Failure LED OFF The surge protector works in the normal
state.
Red The surge protector is faulty.
NOTE
When the mains over-voltage protection circuit is started for the surge protector, the surge protection
function of the surge protector still works and the green working LED is still on. When the failure LED
is red, replace the surge protector in time.
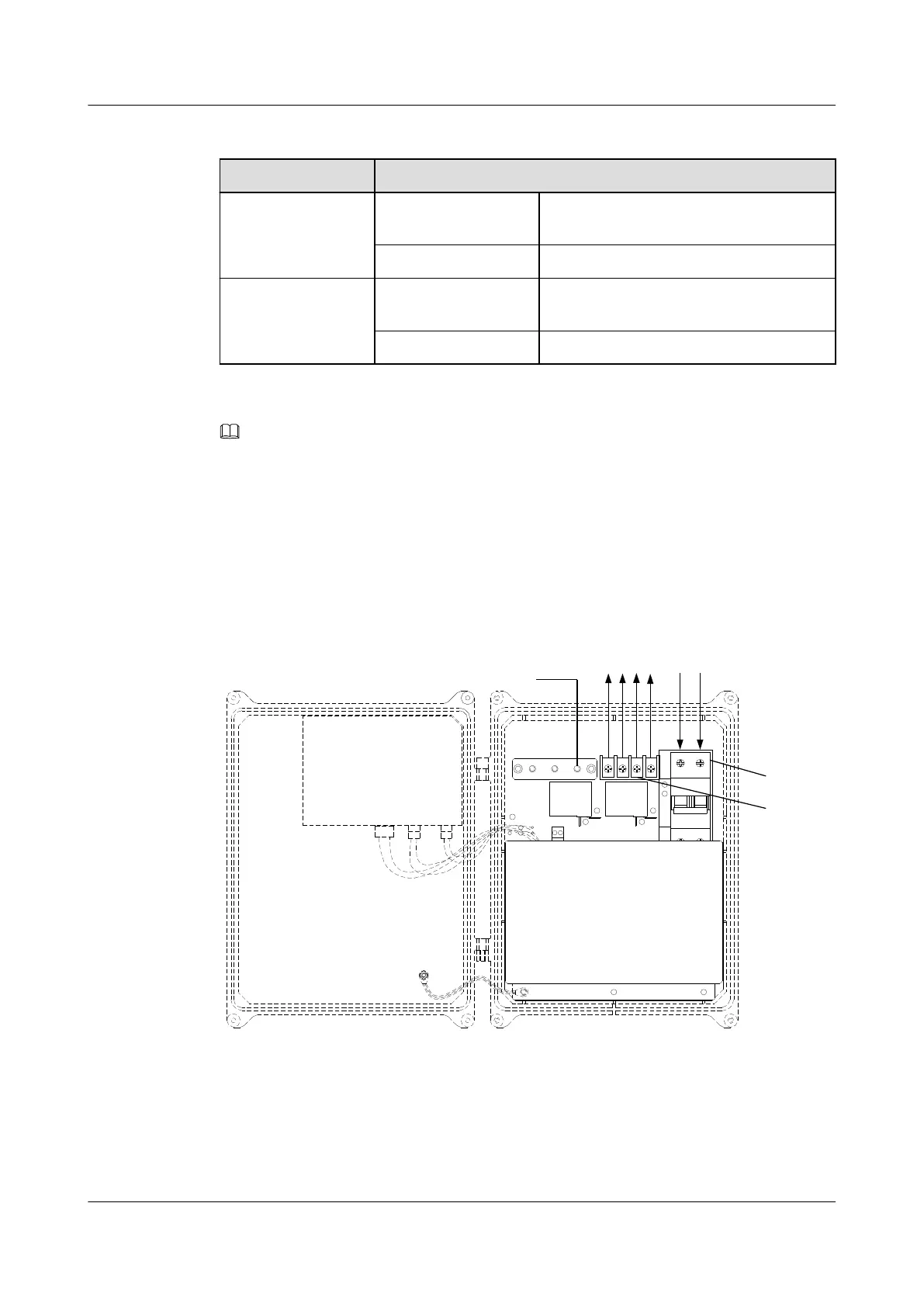
Electrical Connection
Figure 6-37 shows the electrical connections of the SPD28SZ surge protector.
Figure 6-37 Electrical connections of the SPD28SZ surge protector
SPD
SPD
Alarm
Grounding
bar
PE
Nin LinNout Lout
Input terminal
Output terminal
Specifications
Table 6-39 lists the specifications of the SPD28SZ surge protector.
SmartAX MA5600T/MA5603T/MA5608T Multi-service
Access Module
Hardware Description
6 Electromechanical Device
Issue 24 (2018-07-30) Huawei Proprietary and Confidential
Copyright © Huawei Technologies Co., Ltd.
954

Table of Contents

Other manuals for Huawei SmartAX MA5608T

Related product manuals