EasyManua.ls Logo

IHI 9NX - Electrical Wiring System Diagram

IHI 9NX
110 pages
Print Icon
To Next Page IconTo Next Page
To Next Page IconTo Next Page
To Previous Page IconTo Previous Page
To Previous Page IconTo Previous Page
Loading...
STRUCTURE
&
FUNCTION
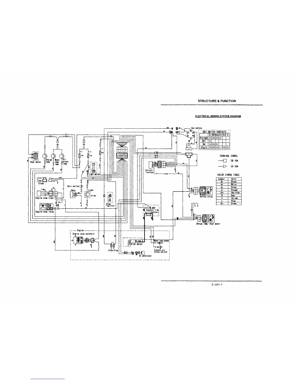
ELECTRICAL WIRING SYSTEM DIAGRAM
Black
hits
Green
Orenge
Sky
blue
Red
Yel
la
Blue

Table of Contents

Related product manuals