EasyManua.ls Logo

Kyocera KM-3050

Kyocera KM-3050
455 pages
To Next Page IconTo Next Page
To Next Page IconTo Next Page
To Previous Page IconTo Previous Page
To Previous Page IconTo Previous Page
Loading...
2GN/2GP/2GR-1
2-3-1
2-3 Operati on of the PWBs
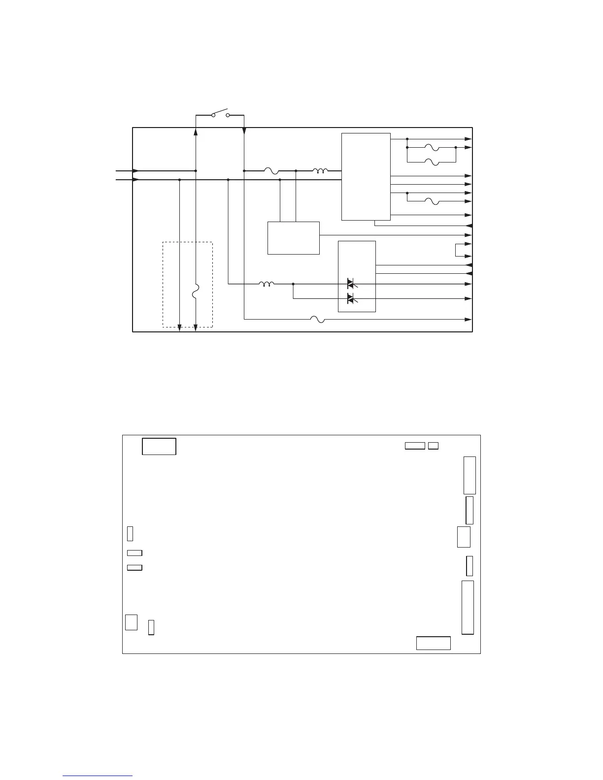
2-3-1 Power source PWB
Figure 2-3-1 Power source PWB diagram
Figure 2-3-2 Power source PWB silk-screen diagram
C
input
LIVE
NEUTRAL
Zero-cross
signal output
circuit
Cassette heater
Fuser
heaters
Switching
regulator
circuit
Fuser
heaters
control
circuit
F201
F202
F101 L101
L102
F103
FH-M
CFM4
ZCROSS
SLEEP
+3R3VD
+5VDF
+24VDF
+24VD
+5VD
+5V
+12VD
FH-S
FH-M
FH-S
FH LIVE
TB4TB3
Power
source PWB
MSW
F203
F102
TB2
TB1
YC5
TB4
TB3
TB1
TB2
YC7
YC10
YC4YC2
YC8
YC3
YC6
YC9
YC1
1
1
1
1
1
1
1
1
1162
7
7
14
6
10
16
3
3

Table of Contents

Other manuals for Kyocera KM-3050

Related product manuals