EasyManua.ls Logo

Mircom TX3 Series - 4.1 Controller Board Components

Mircom TX3 Series
119 pages
Print Icon
To Next Page IconTo Next Page
To Next Page IconTo Next Page
To Previous Page IconTo Previous Page
To Previous Page IconTo Previous Page
Loading...
Lobby Control Unit Setup
Version 3.7 Telephone Access System Installation and Operation Manual 49 (119)
LT-969 Copyright January 2017
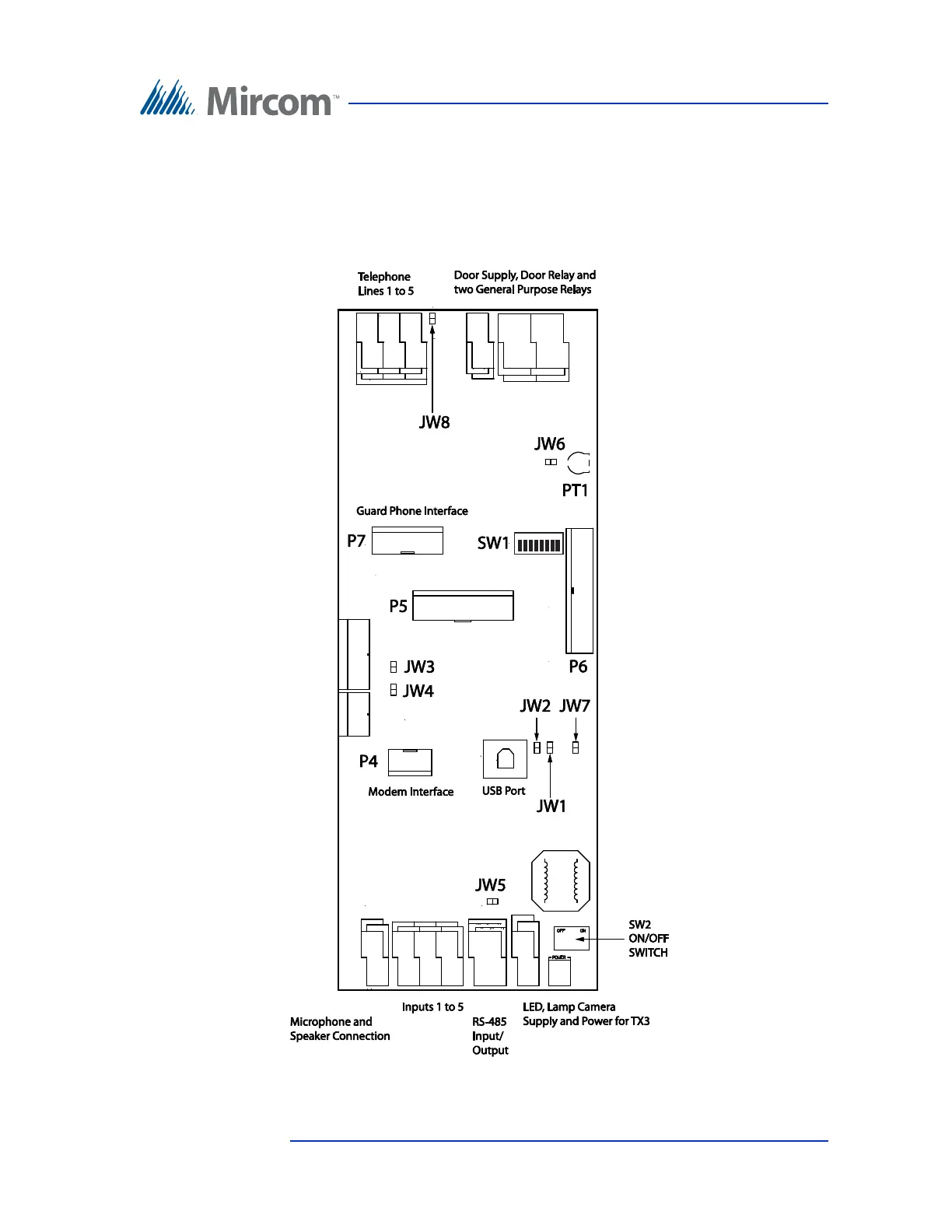
4.1 Controller Board
Figure 25 shows the general layout of the Lobby Control Unit main controller
board. See Figure 27 and Figure 31 for a detailed description of the connectors at
the bottom and top of the controller board.
Figure 25. Lobby Control Unit Main Controller Board

Table of Contents

Other manuals for Mircom TX3 Series

Related product manuals