EasyManua.ls Logo

MKS GE50A - Page 110

MKS GE50A
113 pages
Print Icon
To Next Page IconTo Next Page
To Next Page IconTo Next Page
To Previous Page IconTo Previous Page
To Previous Page IconTo Previous Page
Loading...
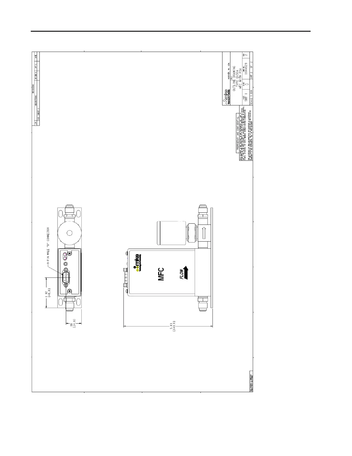
Appendix D : Outline Drawings
100

Table of Contents

Related product manuals