EasyManua.ls Logo

Omron CJ - 08-2008 - Page 60

Omron CJ - 08-2008
733 pages
To Next Page IconTo Next Page
To Next Page IconTo Next Page
To Previous Page IconTo Previous Page
To Previous Page IconTo Previous Page
Loading...
12
CJ-series Features Section 1-2
Racks) or other CPU Units on the same network from a serial port on the CPU
Unit.
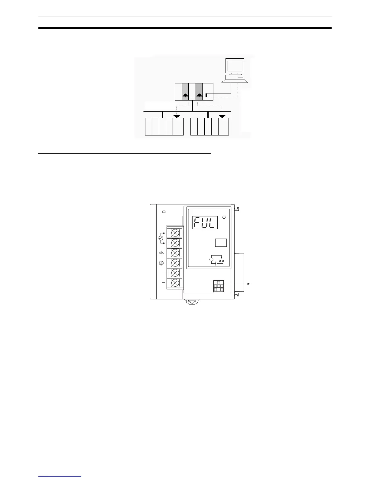
Power Supply Units with Replacement Notification
The CJ1W-PA205C Power Supply Units with Replacement Notification pro-
vide six display levels using a 7-segment display on the front panel of the Unit
to indicate the remaining service life of the Power Supply Unit. An alarm out-
put also notifies when the estimated remaining service life drops to 6 months
or shorter. This function enables Power Supply Unit replacement before the
power supply reaches the end of its service life resulting in a system failure.
Controller Link
Programming Device
Several CPU Bus Units on the same
bus or other CPU Units on the same
network can be accessed from a
single port.
POWER
Years
CJ1W-PA205C
TEST
NC
NC
AC100-240V
L2/N
L1
L
+
ALARM
OUTPUT
DC30V,50mA
NORMAL:ON
ALARM :OFF
CJ1W-PA205C Power
Supply Unit with
Replacement Notification
Alarm output turns OFF
when remaining service
life is 6 months.

Table of Contents

Related product manuals