EasyManua.ls Logo

Rockwell Automation Allen-Bradley 1756-L61S

Rockwell Automation Allen-Bradley 1756-L61S
200 pages
To Next Page IconTo Next Page
To Next Page IconTo Next Page
To Previous Page IconTo Previous Page
To Previous Page IconTo Previous Page
Loading...
Rockwell Automation Publication IASIMP-QS005H-EN-P - April 2016 177
Appendix A
Robot Cell Application Example with GuardLogix® or SmartGuard™ 600
Controller
Introduction
As hardware selection is dependent upon specific application requirements, this quick start references this robot cell
guarding application example to guide you through the hardware selection, Logix integration, and FactoryTalk® View
ME integration steps in this quick start.
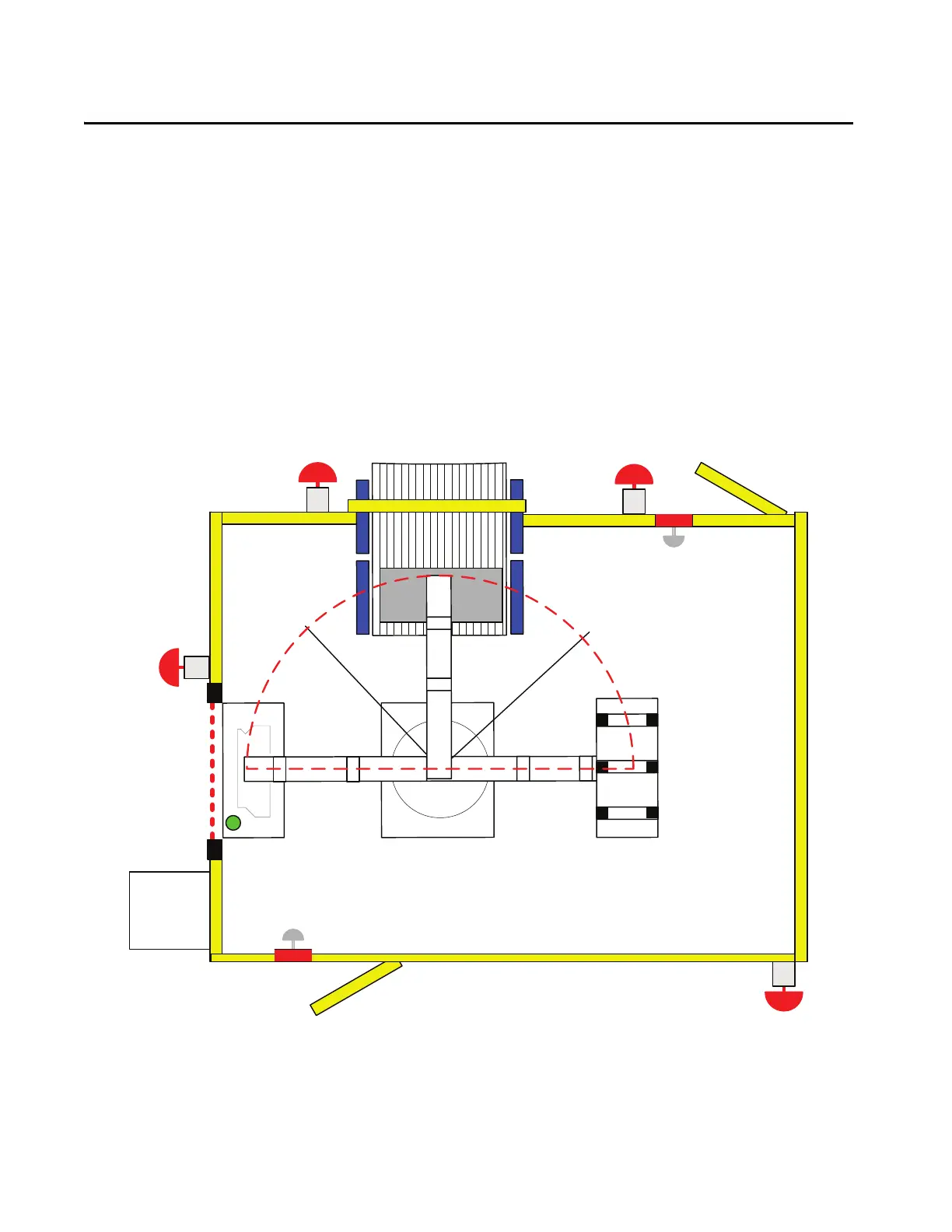
The safety zone in this example is comprised of these guarding devices (inputs): four E-stop buttons, two locking switch/
solenoid devices, and a light curtain. The zone features two safety contactors (outputs) for powering the robot control.
Communication with the Guard I/O™ modules is over an EtherNet/IP network.
E-stop 2
Robot Controller
and Contactors
Locking Switch
and
Solenoid 2
Light Curtain
E-stop 3
E-stop 1
Locking Switch
and
Solenoid 1
E-stop 4

Table of Contents