EasyManua.ls Logo

Roth EnergyLogic Touchline/wireless - Design and Function

Roth EnergyLogic Touchline/wireless
134 pages
Print Icon
To Next Page IconTo Next Page
To Next Page IconTo Next Page
To Previous Page IconTo Previous Page
To Previous Page IconTo Previous Page
Loading...
User Manual Roth EnergyLogic Touchline/Wireless
Design and function
18 P100011294 E
4 Design and function
4.1 Design
4.1.1 Wireless connection module with LAN
B12240a
789
1
CH 1 CH 3
24V 24V
CH 2
24V
24V 24V 24V
25 26
27
28
29 30
31
32 35 3633 34
3
4
5
6
2
03
11
01
12
02
13
14
15 16
17
20
230 V
24 V
Trafo
Pump
230 V
in
eco
24 V
%H
c/o in
out
0604 05
c/o out
0807
18 19
1009
c/o in
230 V
/TB
N
L
NNL L
CH 4
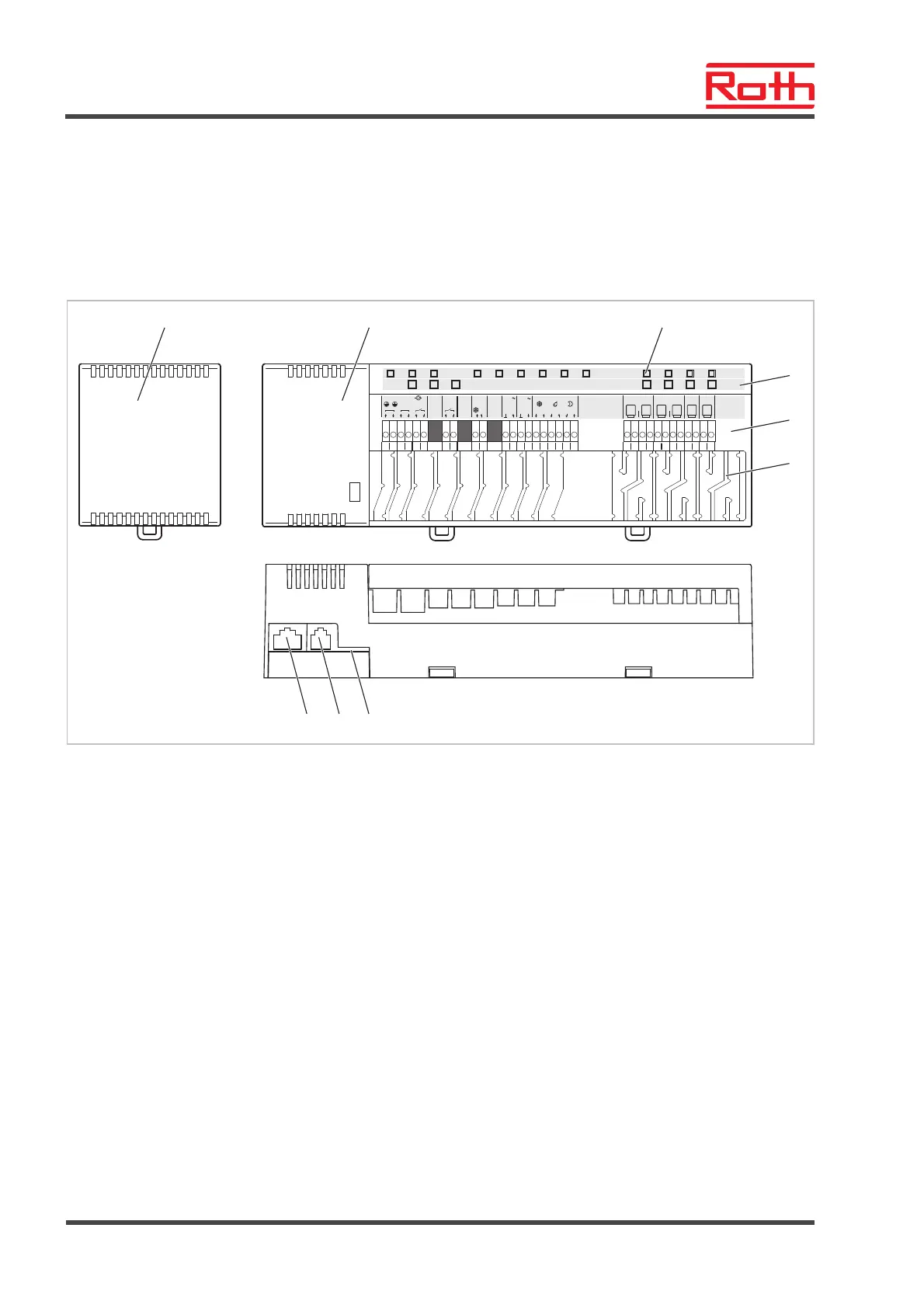
Fig. 2: Design wireless connection module with LAN, 4-channel version shown
1 Transformer 230 / 24 V AC
2 Wireless connection module
3 LEDs
4 Push buttons
5 Terminals
6 Strain reliefs
7 micro SD-card for software update
8 RJ-12 for external active antenna
9 RJ-45 for LAN

Table of Contents

Related product manuals