EasyManua.ls Logo

SAME SILVER 80 - Page 152

Default Icon
470 pages
Print Icon
To Next Page IconTo Next Page
To Next Page IconTo Next Page
To Previous Page IconTo Previous Page
To Previous Page IconTo Previous Page
Loading...
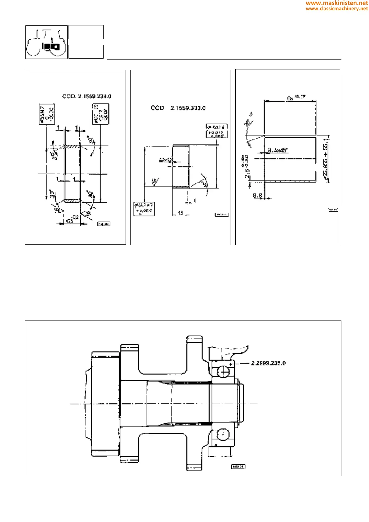
INSTALLING THE INTERMEDIATE SHAFT BEARING - (TRANSMISSIONS WITH MINI-REDUCTION ONLY)
The intermediate shaft bearing for
Silver 100.4 -100.6
must be installed without a retaining circlip (see figure 33).
(If this bearing is purchased as a replacement part, it will be supplied with the circlip installed in the groove; this circlip
must be removed prior to installation on the aforementioned models).
Fig. 33 - Assembly of the intermediate shaft bearing.
Fig. 30 - Nominal dimensions of layshaft
bush 2.1559.239.0 (all transmission ver-
sions).
Fig. 31 - Nominal dimensions of layshaft
bush 2.1559.333.0 (all transmission ver-
sions).
Fig 32 - Nominal dimensions of layshaft
bush 2.1552.316.0 (all transmission ver-
sions with Agroshift).
transmission
primary shaft - secondary shaft - reduction gear unit
3
32-33-34
152
www.maskinisten.net
www.classicmachinery.net

Table of Contents

Related product manuals