EasyManua.ls Logo

SEW-Eurodrive MOVIDRIVE MDA90A-0160-503-X-S00

SEW-Eurodrive MOVIDRIVE MDA90A-0160-503-X-S00
288 pages
To Next Page IconTo Next Page
To Next Page IconTo Next Page
To Previous Page IconTo Previous Page
To Previous Page IconTo Previous Page
Loading...
3
Unit structure, axis system structure
Example for axis system connection without master module
Operating Instructions – MOVIDRIVE
®
modular
45
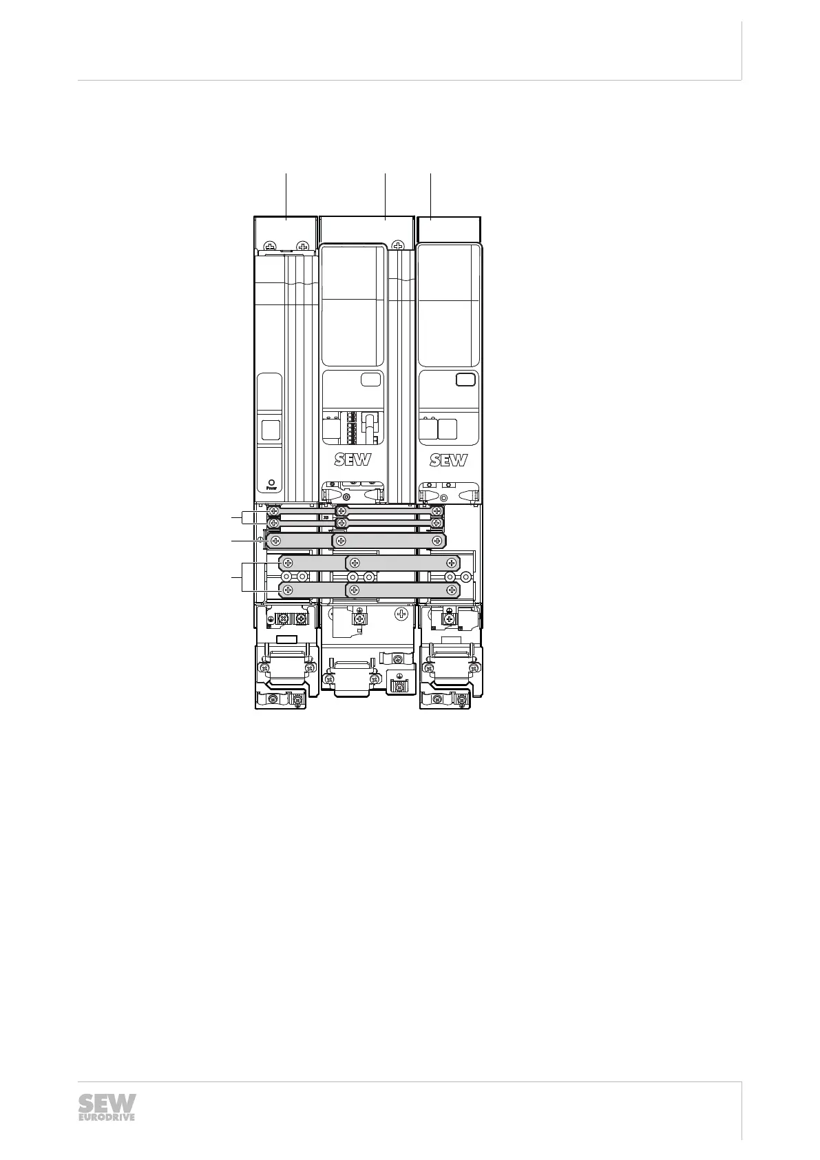
3.7 Example for axis system connection without master module
RUN ERR
X15
X21 X20 X31
S1
S2
+UZ
-UZ
X4
+UZ-UZ
24V
X5
+UZ
X4
-UZ
-UZ +UZ
GND
X31X20_1X21_1
X20_2X21_2
X15_1
X15_2
S1
S2
RUN ERR
+UZ
X4
X5
24V
GND
-UZ
+ UZ- UZ
[1]
[2]
[3]
[4] [5]
[6]
18014411422534411
[1] X5: Connection +24V supply voltage
[2] PE connection
[3] X4: DC link connection
[4] MDP.. power supply module
[5] MDA.. single-axis module
[6] MDD.. double-axis module
24748536/EN – 11/2017

Table of Contents

Related product manuals