EasyManua.ls Logo

SEW-Eurodrive MOVIDRIVE MDA90A-0160-503-X-S00

SEW-Eurodrive MOVIDRIVE MDA90A-0160-503-X-S00
288 pages
To Next Page IconTo Next Page
To Next Page IconTo Next Page
To Previous Page IconTo Previous Page
To Previous Page IconTo Previous Page
Loading...
8
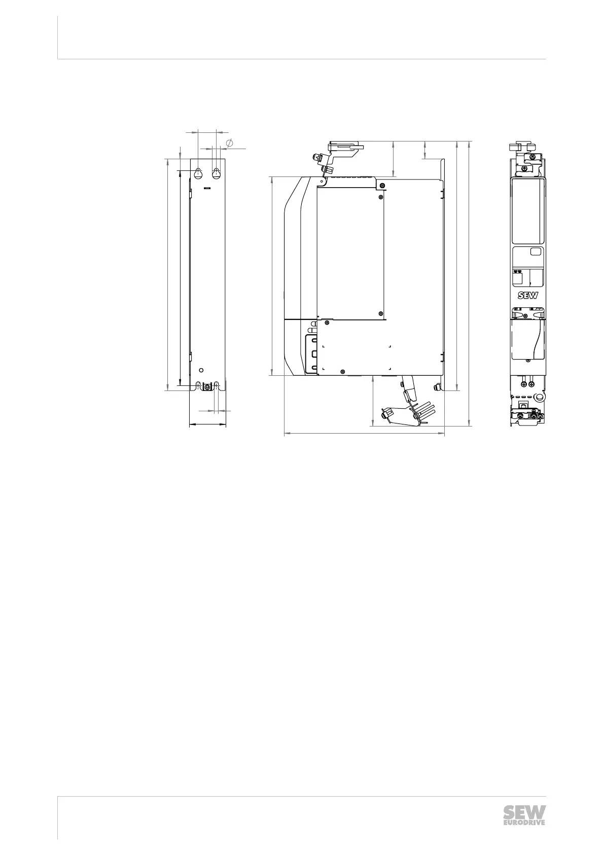
Technical Data
Dimension sheets of the modules
Operating Instructions – MOVIDRIVE
®
modular
226
8.6.2 Dimension sheets of the axis modules
MDA90A-0020 –
0120-.. (size 1)
265
328
29
470*
412
84*
59
30
19
7
13
383
355
60
9007215212815755
24748536/EN – 11/2017

Table of Contents

Related product manuals