EasyManua.ls Logo

Sharp MX-2300 G - AC Power Line Diagram (100 V Series)

Sharp MX-2300 G
428 pages
Print Icon
To Next Page IconTo Next Page
To Next Page IconTo Next Page
To Previous Page IconTo Previous Page
To Previous Page IconTo Previous Page
Loading...
MX-2300/2700 N/G ELECTRICAL SECTION 11 – 6
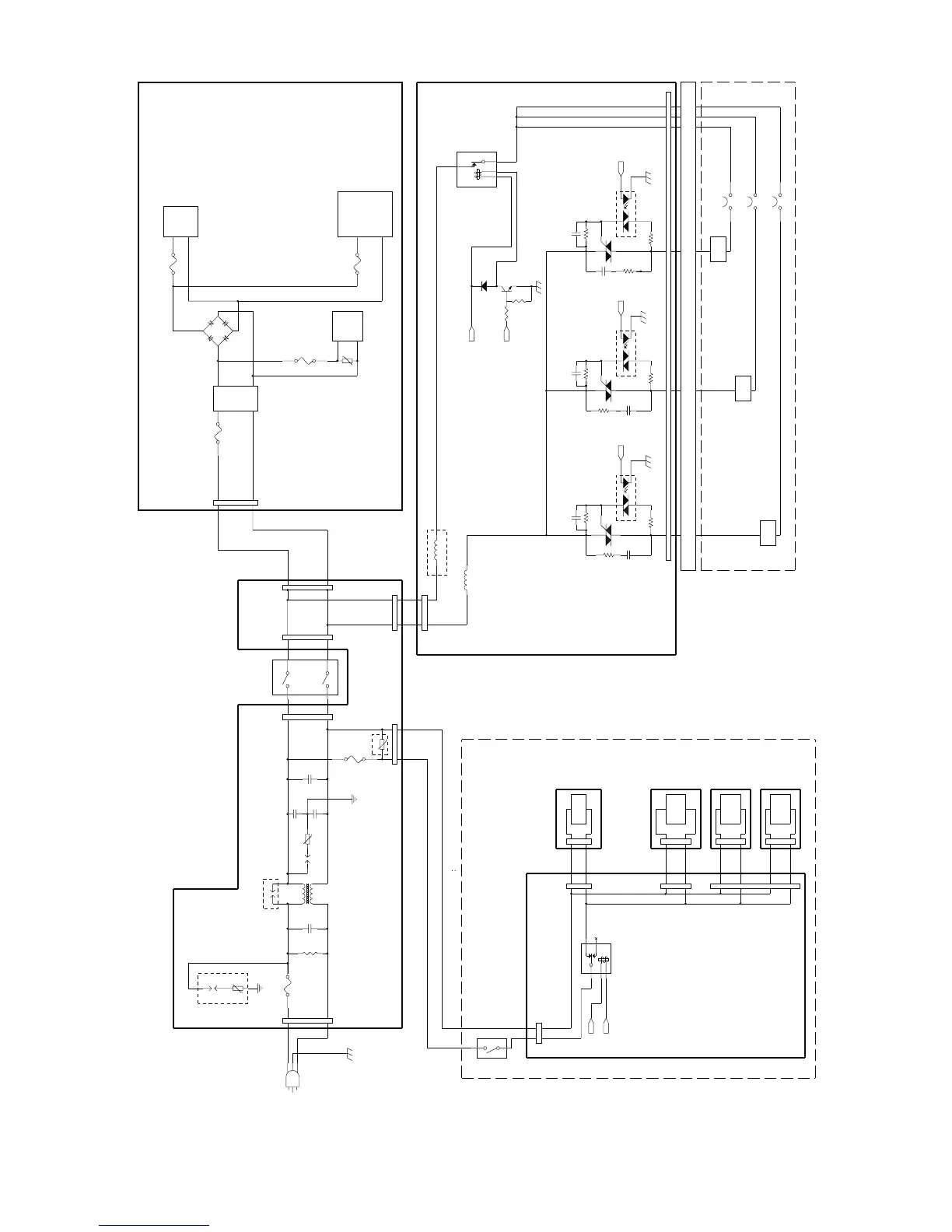
F. AC power line diagram (100V series)
VR1
A1
F102
RY1
Z101
F1
VR3
L1
L2
F101
A1
F301
F103
WH-SW
VR2
A2
D101
~
~
+-
HLOUT_UM
INT24V1
HLOUT_LM
/HL_PR
HLOUT_US
24V2
GND
L
N
15A 250V
AC PWB
2
6
RY1
6
2
G
HL PWB
T1
GND
1
G
4
4
GND
T1
1
T2
drawer
TD1
SSR1 SSR2
HL MAIN
THERMOSTAT
THERMOSTAT
FUSING UNIT
HL LOW
THERMOSTAT
HL SUB
6
2GND
G
4
1
SSR3
T2
T1
T2
MAIN POWER SW
WH-L
WH-N
NC
WH PWB
NO
10W
LCC
T2.0AH/250V
WH-L WH-N
F3
AC IN
TD2
TD3
10W
DESK
10W
MAIN UNIT
SCN
SCN unit
5W
no-mounting
no-mounting
no-
mounting
DESK
OPTION
OPTION
LCC
W ARM HEATER SET OPTION
option
Voltage
Generation
+24V1
+24V2
+24V3
+24V4
+24V5
+12V
+5Vn
+3.3V
FW
Generating
Circuit
DC POWER SUPPLY
12A/125V
T5AH/250V
T8AH/250V
N/F
T1AH/250V
Voltage
Generation
+5Vo
+5VL
150 AC120V -15A/AC240V-10A°C
150 AC120V -15A/AC240V-10A°C
150 AC120V -15A/AC240V-10A°C
OPTION
MAIN
UNIT

Table of Contents

Other manuals for Sharp MX-2300 G

Related product manuals