EasyManua.ls Logo

Spectra-Physics InSight X3 - Figure 1-8 Outline Drawing, Power Supply, Side (Left) and Rear (Right) Views; Figure 1-9 Outline Drawing, Power Supply and Chiller Rack

Spectra-Physics InSight X3
146 pages
Print Icon
To Next Page IconTo Next Page
To Next Page IconTo Next Page
To Previous Page IconTo Previous Page
To Previous Page IconTo Previous Page
Loading...
1-8 Introduction
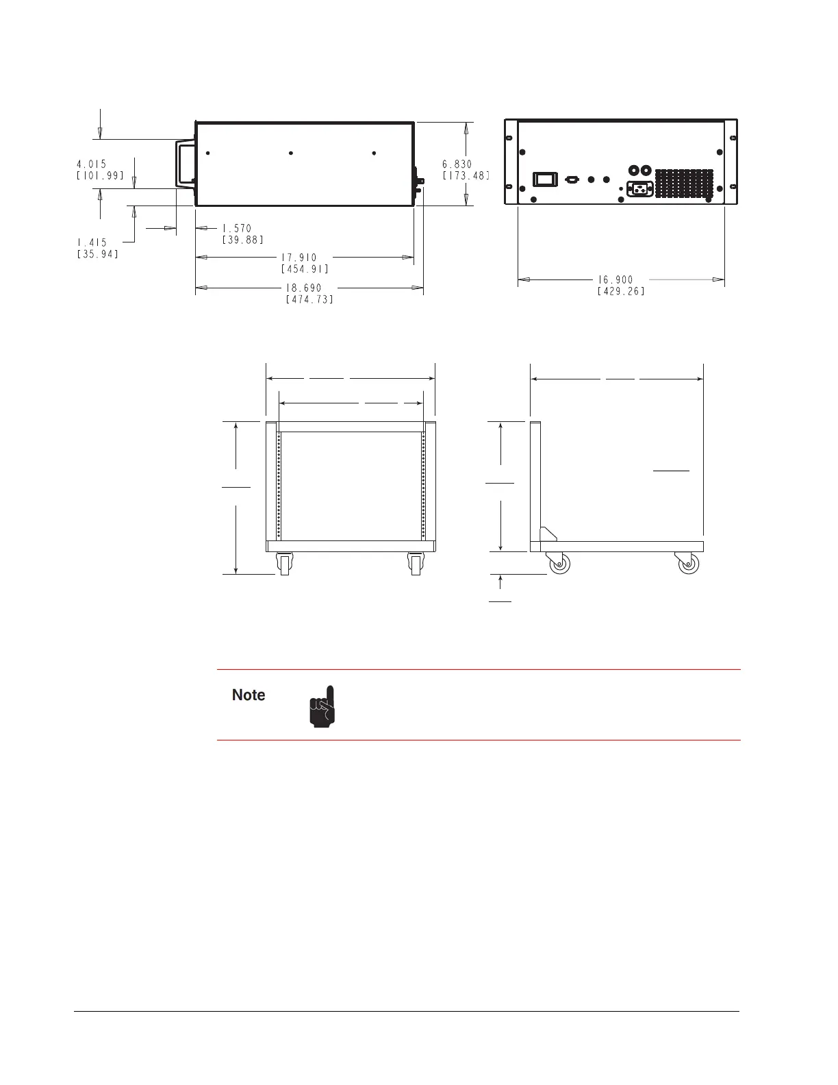
Outline Drawings
Figure 1-8 Outline drawing, power supply, side (left) and rear (right) views
Figure 1-9 Outline drawing, power supply and chiller rack
Refer to the chiller manual for chiller drawings.
19.5
(49.5)
22.1
(56.1)
22.625
(57.5)
19.00
(48.26)
2.6
(6.6)
29.0
(73.7)
Front View Side View
Dimensions are in
inches
(cm)

Table of Contents

Related product manuals