EasyManua.ls Logo

Synrad FH FLYER - Page 194

Synrad FH FLYER
250 pages
Print Icon
To Next Page IconTo Next Page
To Next Page IconTo Next Page
To Previous Page IconTo Previous Page
To Previous Page IconTo Previous Page
Loading...
SYNRAD FH Series Flyer Operator’s Manual Version 3.4
164
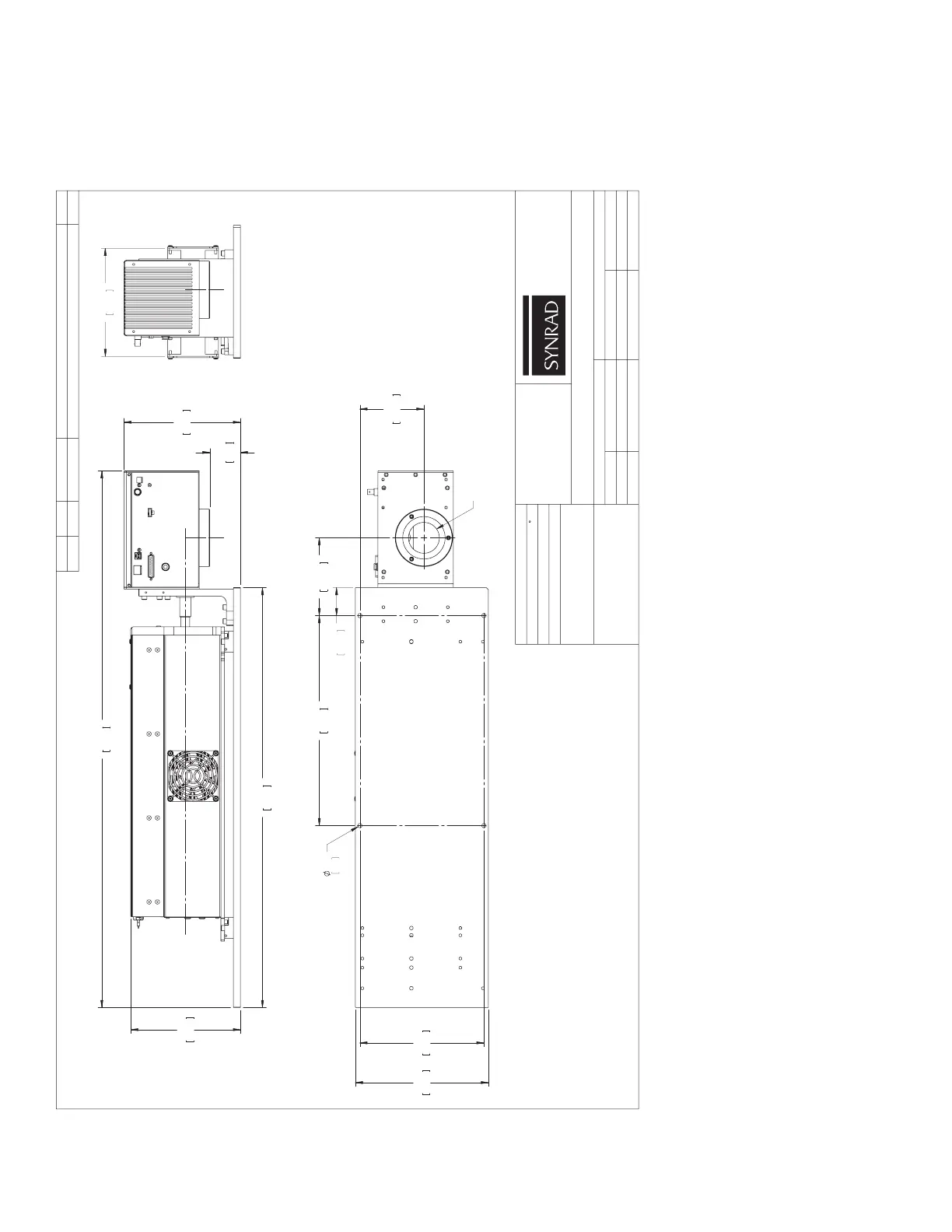
Figure 6-21 FH Flyer marking head package outline and mounting dimensions
FH Flyer/Model 48-1/48-2
8.33
211.5
974.0
38.35
198.9
7.83
55.6
2.19
30.0
762.0
3989 DMD
RELEASE TO PRODUCTION
7-Jan-09
A
.
DESCRIPTION:
FINISH:
MATERIAL:
REV
ECO
DATE
DESCRIPTION
DB
TOLERANCES UNLESS NOTED:
.
ANGLE = ±
0.1
.x = ±
0.01
.xx = ±
0.005
.xxx = ±
.
0.5
Inches
D. DUVALL
.
1
PERMISSION OF SYNRAD INC.
PART NUMBER:
DWG/FILE NUMBER:
SHEET
ENG:
DRAWN BY:
DATE:
UNITS:
CATEGORY:
CHECKED BY:
DATE:
SIZE: B
FINISH CLASS:
APPROVED BY:
DATE:
OR IN PART WITHOUT WRITTEN
USED OR DISCLOSED IN WHOLE
SYNRAD INC. AND SHALL NOT BE
THIS DRAWING IS PROPRIETARY TO
Fax: (425)349-3667
OUTLINE & MOUNTING - FLYER, T70i, FAN
7-Jan-09
300-19676-70
1
.
.
.
300-19676-70
of
PROPRIETARY
SYNRAD INC.
4600 Campus Place
Mukilteo, WA 98275
Phone: (425)349-3500
7.72
196.1
BEAM EXIT
2.000
50.80
241.3
9.50
225.0
8.860
381.0
15.000
141.12
5.556
116.20
4.575
4X .300
MOUNTING HOLES
7.6

Table of Contents

Related product manuals