EasyManua.ls Logo

Synrad FH FLYER - Page 195

Synrad FH FLYER
250 pages
Print Icon
To Next Page IconTo Next Page
To Next Page IconTo Next Page
To Previous Page IconTo Previous Page
To Previous Page IconTo Previous Page
Loading...
technical reference
SYNRAD FH Series Flyer Operator’s Manual Version 3.4
165
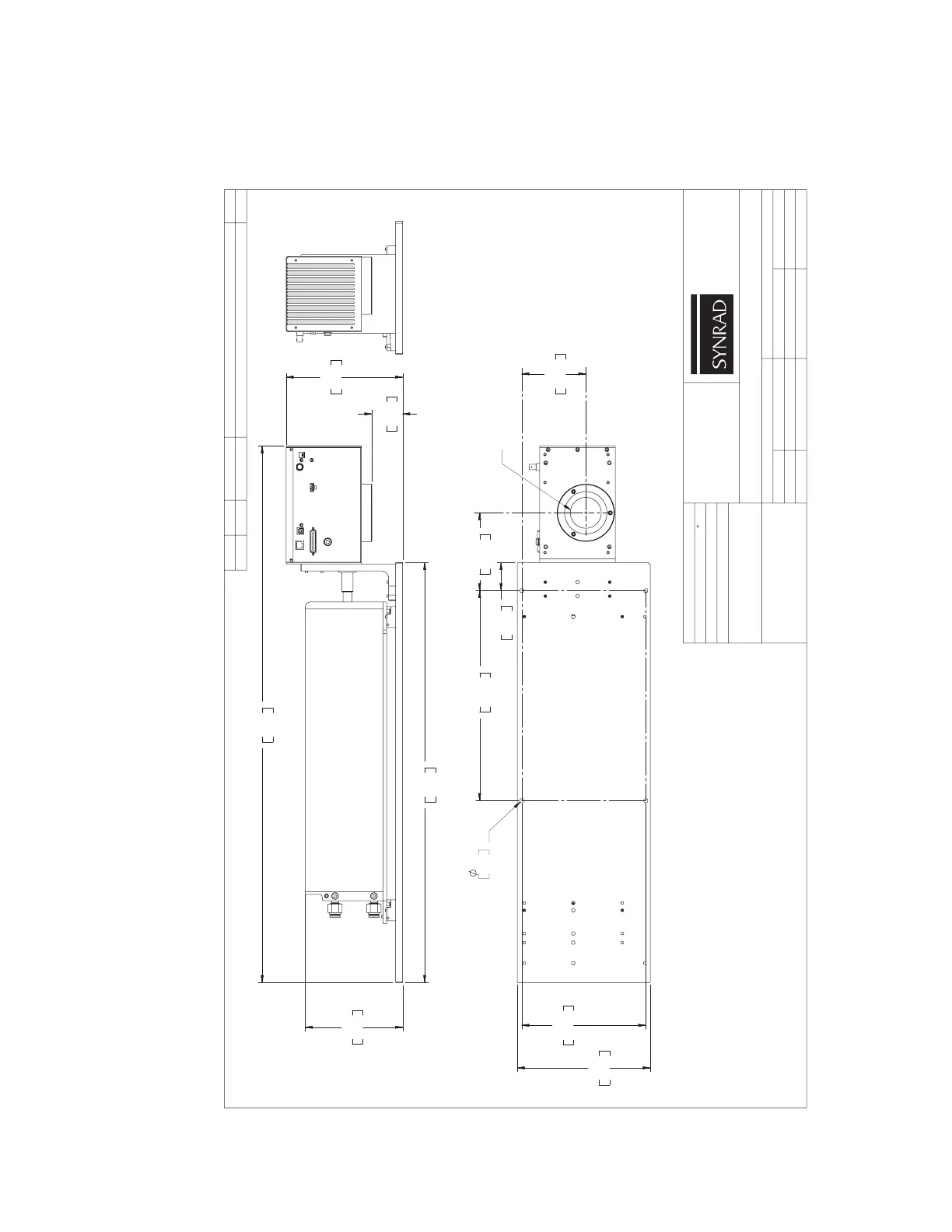
package outline drawings
Figure 6-22
FH Flyer/Model 48-1/48-2 package outline and mounting dimensions
Sheet 1 of 2
000.2
08.05
5.112
33.8
6.671
59.6
0.479
53.83
091.2
36.55
0.03
0.267
TIXE MAEB
3.142
40.522
575.4
21.141
000.51
02.611
068.8
00.183
655.5
05.9
X4
003.
GNITNUOM
SELOH
26.7
:SETON
RIA HTOB ,RESAL 001T & 08T ,06T EHT OT YLPPA NWOHS NOISNEMID .1
.NWOHS NOISREV DELOOC-RETAW .DELOOC RETAW DNA
.SRETEMILLIM ERA ] [ STEKCARB NI SNOISNEMID .2
NOITCUDORP OT DESAELER
70-guA-035753
A
sehcnI
:NOITPIRCSED
:HSINIF
:LAIRETAM
VER
OCE
ETAD
NOITPIRCSED
ELOHWNIDESOLCSIDRODESU
EBTONLLAHSDNA.CNIDARNYS
± = ELGNA
1.0
± = x.
10.0
± = xx.
500.0
BD
I
1
fo
06-67691-003
± = xxx.
.CNIDARNYSFONOISSIMREP
:REBMUN TRAP
:REBMUN ELIF/GWD
TEEHS
:GNE
:YB NWARD
:ETAD
:STINU
:YROGETAC
:YB DEKCEHC
:ETAD
B :EZIS
:SSALC HSINIF
:YB DEVORPPA
:ETAD
NETTIRWTUOHTIWTRAPNIRO
:DETON SSELNU SECNARELOT
5.0
OT YRATEIRPORPSIGNIWARD SIHT
7663-943)524( :xaF
SEIRES T ,REYLF - GNITNUOM & ENILTUO
70-yaM-03
06-67691-003
1
YRATEIRPORP
.CNI DARNYS
ecalP supmaC 0064
57289 AW ,oetlikuM
0053-943)524( :enohP
A

Table of Contents

Related product manuals