EasyManua.ls Logo

TECO TP03 PLC - TP02-16 EYT Specification

TECO TP03 PLC
152 pages
Print Icon
To Next Page IconTo Next Page
To Next Page IconTo Next Page
To Previous Page IconTo Previous Page
To Previous Page IconTo Previous Page
Loading...
Chapter 3 Expansion unit specification
expansion unit 3-5
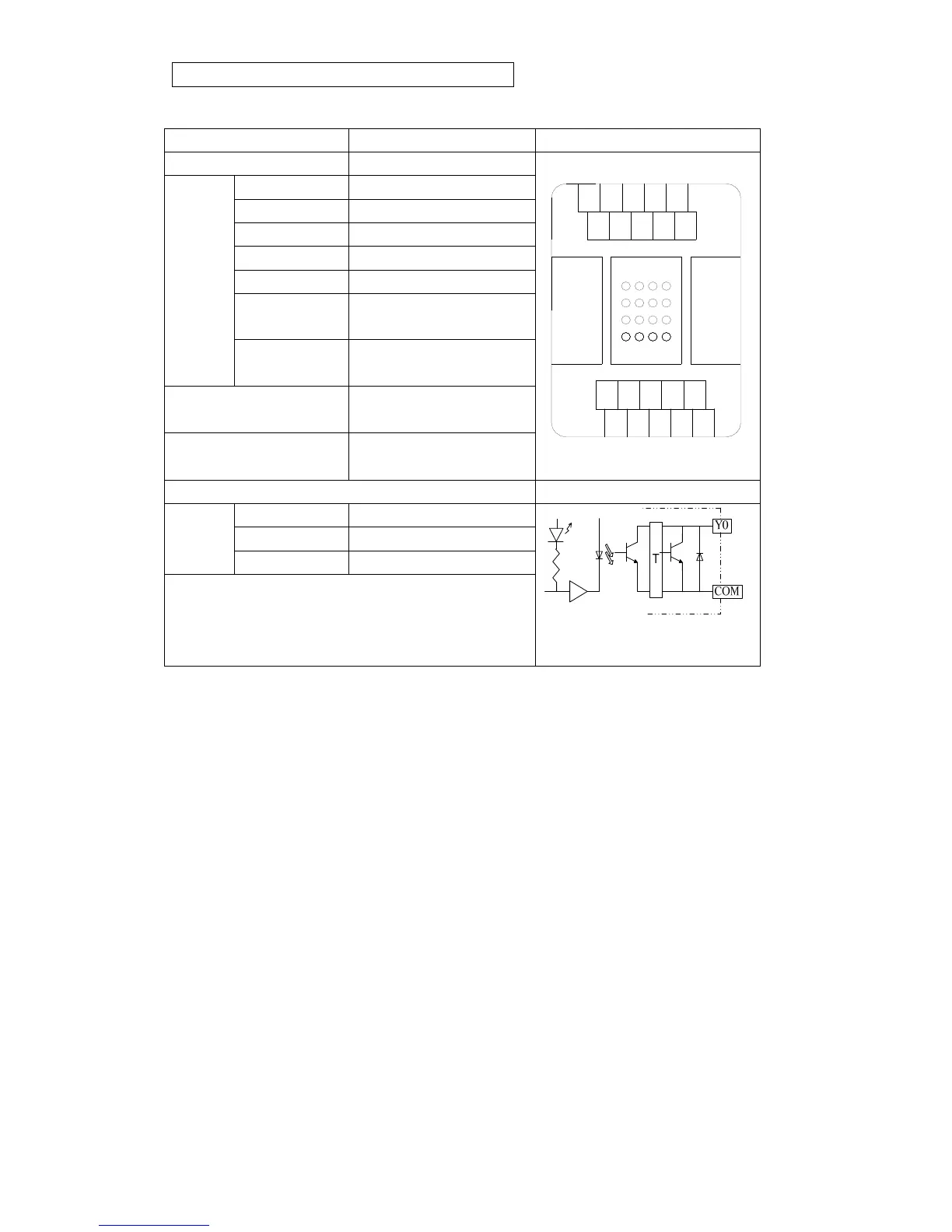
1.3.3 TP02-16EYT specification
Item Specification Outline figure
Input point 0
Output point 16
Voltage
DC4vDC27V
Current 0.3A/1point; 1A/1 common
Type Transistor NPN
Response time Below 1ms
Output
indicator
LED lit when output ON.
Output
Insulation
method
Photo-coupling insulation
Internal power supply:
Current consumption
For 5VDC: Max 50mA
For 24VDC: Max 80mA
accessory
Expansion cable
(TP-042EC : 4cm14pin)
Upside terminal block
8
1
3
6
C(-).C
24
5
7
C(-).D
7
C(-).A
6
3
1
2
5
4
8
C(-).B
Downside terminal block
Internal circuit
Symbol content
1 ~ 8 Output terminal
Terminal
block
C(-).A~C(-).D Common terminal
Note:
a. 4 points share one common terminal.
b. The common terminals with same symbol in upside
and downside are not connected internally.

Table of Contents

Related product manuals