EasyManua.ls Logo

Thermal Dynamics CUTMASTER 151 - APPENDIX 29: 400; 415; 460 V SYSTEM SCHEMATIC

Thermal Dynamics CUTMASTER 151
172 pages
Print Icon
To Next Page IconTo Next Page
To Next Page IconTo Next Page
To Previous Page IconTo Previous Page
To Previous Page IconTo Previous Page
Loading...
APPENDIX A-32 Manual 0-4691
A
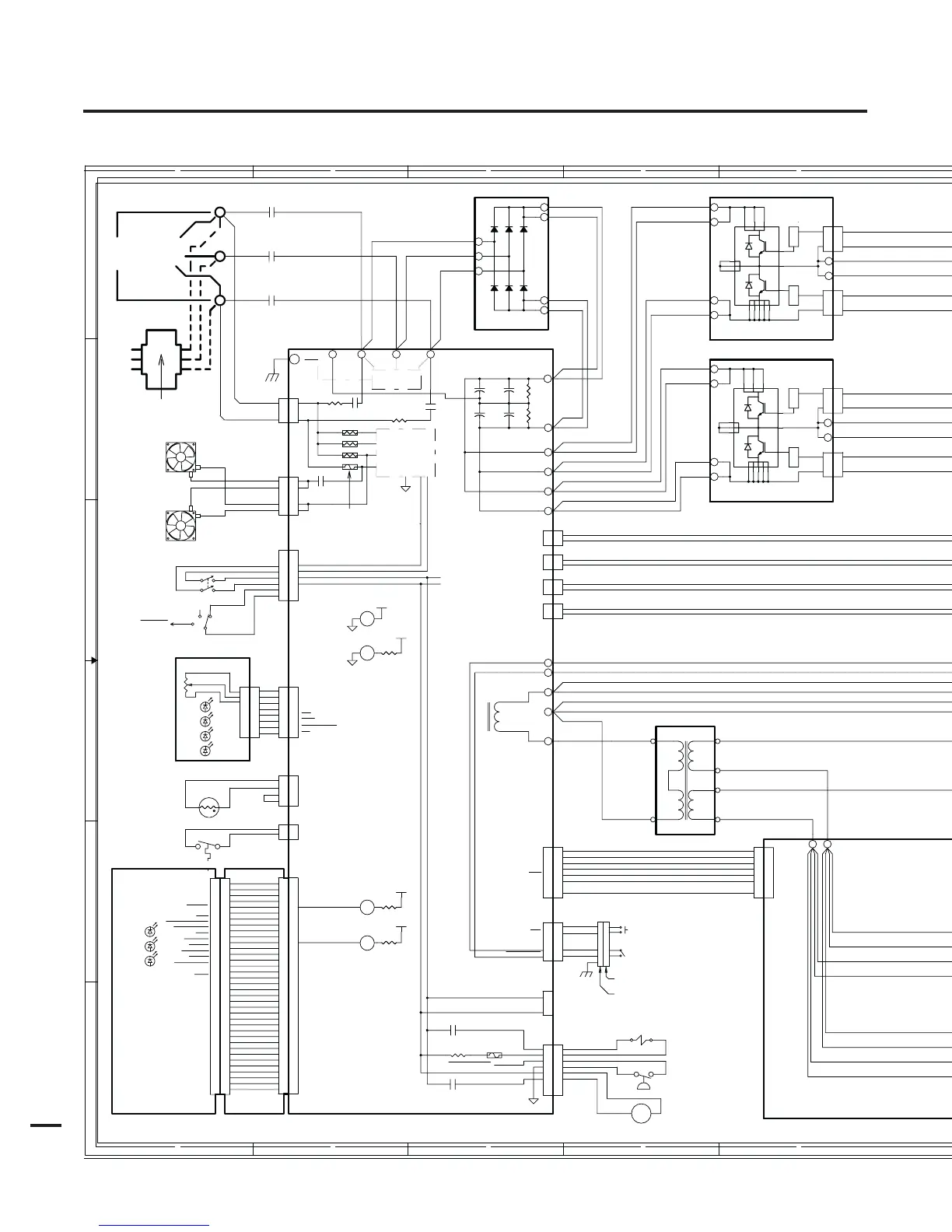
APPENDIX 29: 400 / 415 / 460V SYSTEM SCHEMATIC
Power Supply and SL100 Torch (without solenoid on mounting tube)
Art # A-04540
1
1
2
2
3
3
4
4
5
5
A
B
C
D
E
F
+12VDC
+18V
+18V
+18V
400/415V
AC
(5)
(3)
2
SEC
2
GAS
2
DC
ASSY 19X2197 (460V)
GATE
DRIVE
2
ON/OFF SW
CHASSIS
GND
1
CURRENT
CONTROL/
LED PCB
19X1604
W1
1
TEMP
W1
1
(1)
1
W1
(4)
PRI
(2)
CURRENT ADJUST:
25 - 100 AMP
IGBT
HEATSINK
TEMP
INDUCTOR
TEMP
J29
TS1
J14
P18 J18
FAN1
FAN2
M1
M2
J15P15
1
3
4
2
P11 J11
BA
INPUT DIODE
IGBT BOARD
ASSY 19X1787
MAIN TRANSFORMER
J7B
J3B
J7A
J3A
P3B
P7B
P3A
P7A
E22
TEST
CONN
P24
W1
PS1
SOL1
GAS
SOLENOID
PRESSURE
SWITCH
MAIN
CONTACTOR
T5
PRI
SEC
P14 J27P27
J33 P33
P39 J39
ATC CONNECTION
CONFIGURATION
(STANDARD)
400V
3 PHASE
INPUT
GATE
DRIVE
GATE
DRIVE
GATE
DRIVE
11
22
11
22
21
22
23
POT LOW
GATE DRIVE B RTN
GATE DRIVE B
GATE DRIVE A RTN
GATE DRIVE A
- OUT SENSE
CURRENT SENSE
CURRENT SENSE RTN
TIP VOLTS
+12V
TORCH SW
PRESS GOOD
POT WIPER
RUN/SET
TIP SENSE
CSR
24
25
26
27
28
29
30
31
ISENSE
32
33
CURRENT SENSE RTN
34
35
36
CURRENT SENSE
OVERTEMP
OVTEMP
+12VDC
DC OK
4
5
3
6
7
12
9
15
10
14
16
13
19
20
17
18
11
8
1
2
POT HIGH
+12VDC
AC OK
DC COM
TORCH SW RTN
4
EXTENDER
5
3
6
7
12
9
15
10
14
16
13
19
20
17
18
11
8
1
2
21
22
23
24
25
26
27
28
29
30
31
32
33
34
35
36
21
22
23
24
25
26
27
28
29
30
31
32
33
34
35
36
4
5
3
6
12
9
15
10
14
16
13
19
20
17
18
11
8
1
2
4
5
3
6
7
12
9
15
10
14
16
D13
13
19
20
17
18
11
8
1
2
21
22
23
24
25
26
27
28
29
30
31
32
33
34
35
36
7
D33
ASSY 19X2189
DC COM
W1 ON
D25
GAS ON
DC COM
DC COM
P13
J12 J43
P1
INV ON
DRAG ON
SW ON
ASSY 19X1775
LOGIC
8
3
5
2
7
1
4
6
8
6
7
4
1
5
2
3
DC COM
TIP VOLTS
+12VDC
I SENSE
-OUT SENSE
CSR
TIP SENSE
(71)
(70)
(77)
(75)
(74)
(73)
(72)
8
3
5
2
7
1
4
6
8
6
7
1
4
5
2
3
PIP
3
5
2
1
4
66
1
4
5
2
3
8
TORCH SW
TORCH SW RTN
PIP
PIP RTN
2
TORCH
SW
(78)
(79)
(80)
(81)
J34 P34
1
4
3
J23
3
2
1
8
3
5
2
7
1
4
6
J24
8
6
7
1
4
5
2
3
(12)
(13)
(11)
(10)
(8)
(9)
J25
J30
J31
J26
1
2
1
2
1
2
1
22
P25
P30
P31
2
1
2
1
2
1
1
TS2
P32 J32
1
2
1
2
P29
NTC
1
2
3
4
1
4
2
3
(25)
(24)
28VAC B
SET
(21)
(22)
28VAC A
(23)
SW1
SW2
(26)
8
3
5
2
7
1
4
6
28VAC B
28VAC A
8
6
7
1
4
5
2
3
230V
(6)
(6)
(7)
230V
(7)
3
5
2
1
4
6
6
1
4
5
2
3
1
3
4
2
400V 'CE' VERSION
INCLUDES IN-LINE
EMC FILTER
IGBT BOARD
ASSY 19X1787
E12A
E17A
E19A
E21A
E9A
E11A
E12B
E17B
E19B
E21B
E9B
E11B
E52
E47
E3E2E1
AC
E15
E7
E4
E23
E20
E30
P26
E10
E27
E32
8
6
7
4
1
5
2
3
(36)
(38)
(37)
8
6
5
2
3
1
4
7
8
3
5
2
7
1
4
6
(35)
(41)
(40)
(39)
(42)
8
6
7
1
4
5
2
3
+12V
POT LOW
OVERTEMP
POT WIPER
POT HIGH
DC
GAS
AC
E5
E6
(FILTERING)
R29 (415/460/600V)
R78 (400V)
R30 (208/230V)
F1
T1
K2
K1
K1
28VAC A28VAC B
28VAC A
28VAC B
GND
SEE TABLE 1 FOR
F1, R29,R30 & R78
CLOSED WHEN
PRESSURE OK
TO BIAS SUPPLY
FAN
INRUSH
K1
K2
CONTACTOR ON
K5
SOLENOID ON
K4
K5
K4
F2, 0.9A,
(RESETABLE)
PRESS GOOD
8
2
1
4
3
ATC RECEIVER
ATC MALE
CONNECTOR
SENSE
CURRENT
MODE SW
RAR OFF
RUN
(46)
L1
L2
L3
E33
(PILOT PCB)
(F9)
(TS1)
(TS2)
AC
AC
/460
INPUT
3 PHASE
1 PHASE
208/230V
INPUT
MAIN BOARD
ASSY 19X2198 (400V)
ASSY 19X2229 (415V)
24
12
23
1314
25
27
24567
1
28
24
12
23
1314
25
27
24567
1
28
tt

Table of Contents

Other manuals for Thermal Dynamics CUTMASTER 151

Related product manuals